Neubau Büro- und Werkstättengebäude, Zürich

© Andrea Scavini

Bauherrschaft:
Opernhaus Zürich AG und Allreal Generalunternehmung

Städtebau:
Erstellung einer geschlossenen Hofrandbebauung mit dem denkmalgeschützten Hotel Eden mit repräsentativer Fassade zum See.

Nutzung:
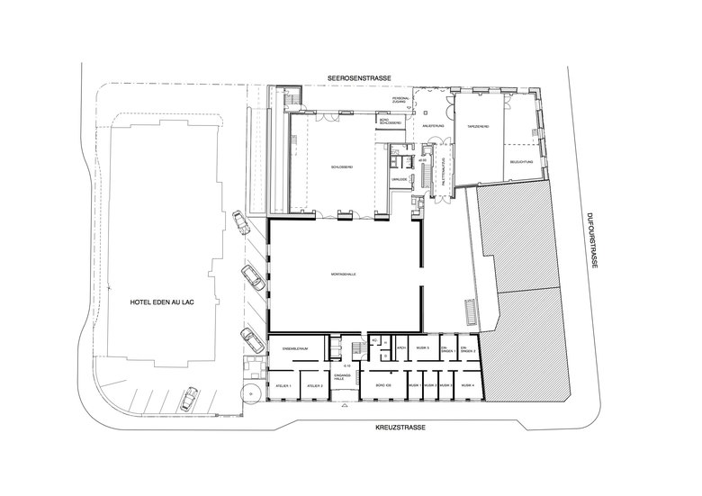
Erweiterung der Werkstätten des Opernhaus Zürich mit einem dreigeschossigen Montageraum und einem zweigeschossigen Malsaal. Integration des internationalen Opernstudios mit Proberäumen, Musikzimmern, Dramaturgie und Verwaltungsräumen des Opernhauses. Vermietbare Räume der Allreal Generalunternehmung.

Hinterlüftete Fassaden mit Verkleidung aus Sandsteinplatten. Kastenfenster aus äusserer nicht unterteilter Verglasung und inneren dreiteiligen Fenstern zum öffnen.

Photo © Andrea Scavini
Photo © Andrea Scavini
Grundriss Erdgeschoss
Grundriss 4. Obergeschoss
Quer- und Längschnitt durch Neubau und Werstättengebäude
Architekci
Rafflenbeul + Partner Architekten AG
Rok
2007
Project Status
Built

Projekty powiązane 

  • Moos
    playze
  • Reiters Reserve Premium Suiten
    BEHF Architects
  • Erweiterung und Instandsetzung Hallenbad Altstetten
    MIYO Visualisierung
  • Neubau von fünf Einfamilienhäusern
    Bäumlin+John AG
  • The Forge in der 105 Sumner Street in London
    Kiefer Klimatechnik GmbH

Magazyn 

Inne projekty autorstwa Rafflenbeul + Partner Architekten AG 

Neubau Mehrfamilienhaus, Zürich
Zürich, Switzerland
Umbau und Sanierung Terrasse Restaurant Belcanto, Opernhaus Zürich
Zürich, Switzerland
Sanierung Bernhard Theater Zürich
Fassadensanierung Werkstättengebäude, Opernhaus Zürich
Zürich
Umbau und Sanierung Garage Johann Frei AG, Zürich
Zürich, Switzerland