„open mobility lab" Ostfalia Hochschule für angewandte Wissenschaften

Salzdahlumerstraße 46/48, Wolfenbüttel, Niemcy
Drawing © S+S

Gegenstand der Planung war die Konzeption eines „open mobility lab“ für die Ostfalia, Hochschule für angewandte Wissenschaften am Standort Wolfenbüttel.

Bei dem neu zu errichtenden Gebäude handelt es sich um eine Forschungsstätte für zukünftige Mobilitätskonzepte sowie ein separat zu nutzendes physikalisches Großlabor für elektromagnetische Verträglichkeit (EMV-Absorberkammer).
Die neu zu errichtenden Labor-, Werkstatt- und Büroflächen dienen anwendungsorientierten Forschungsprojekten mit den Schwerpunkten:

- Intelligente Systeme für Energie und Mobilität im Fahrzeugbau
- Kunststoffe und Materialwissenschaften
- Erneuerbare Energien und Ressourcenefffizienz

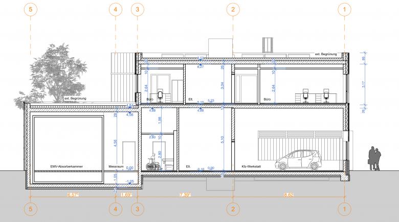
Die dem Entwurf zugrundeliegende Gebäudeform folgt den beengten Bedingungen des Grundstücks. Zu erhaltende Zufahrtsstrassen bzw. Fußwege bestimmen die Baufluchten des Gebäudes im Osten, Norden und Westen. 
Der Hauptzugang erfolgt im Osten aus der Richtung des Gebäude L. Der Neubau bildet durch das zweigeschossige Hauptgebäude und die eingeschossige EMV-Absorberkammer im Zusammenspiel mit Gebäude L einen angenehm proportionierten Vorplatz zum Hauptzugang.

Über das Foyer mit Haupttreppenhaus und Aufzug wird im EG die Fahrzeughalle mit KFZ-Werkstatt, EMV-Kammer und Nebenräumen erschlossen, im OG sind über einen innenliegenden Flur verschiedene Büros und Labornutzungen erschlossen. Über eine aussenliegende Stahltreppe an der Südfassade des Gebäudes wird der zweite Rettungsweg aus dem OG sichergestellt.

Drawing © S+S
Drawing © S+S
Photo © Uwe Brodmann Fotografie
Photo © Uwe Brodmann Fotografie
Photo © Uwe Brodmann Fotografie
Architekci
Schneider + Sendelbach
Rok
2021
Project Status
Built
Klient
Staatliches Baumanagement Braunschweig
Landschaftsarchitektur
Planungsbüro Hoffmann, Braunschweig

Projekty powiązane 

  • Moos
    playze
  • Reiters Reserve Premium Suiten
    BEHF Architects
  • Erweiterung und Instandsetzung Hallenbad Altstetten
    MIYO Visualisierung
  • Neubau von fünf Einfamilienhäusern
    Bäumlin+John AG
  • The Forge in der 105 Sumner Street in London
    Kiefer Klimatechnik GmbH

Magazyn 

Inne projekty autorstwa Schneider + Sendelbach 

Nytt Operahus Oslo
Oslo, Norway
Zentrum für Synthetische Lebenswissenschaften ZSL, The Riesner Buildung
Düsseldorf, Niemcy
Cityappartments Wilhelmstraße
Braunschweig, Niemcy
Pflegetrakt HNO - Augenklinik, Uniklinikum Bonn
Bonn, Niemcy
Sanierung und Erweiterung der Grundschule Heidberg und Einrichtung zum Ganztagsbetrieb
Braunschweig, Niemcy