School of Business – The Citadel

Charleston, USA
Photo © Brad Feinknopf

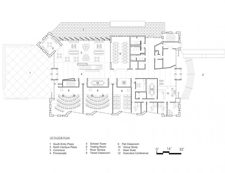
Sited on the edge of campus at The Citadel, the Military College of South Carolina, the 45,000-square-foot School of Business acts as a gateway to the college, and serves as an ambassador to Charleston’s business community. The building is a contemporary interpretation of their historic campus, distinctly open and transparent, conveying a welcoming gesture to the City in contrast to the historic fortress-like buildings of the adjacent campus. The new building utilizes forms, shapes, and materials that recall the heritage of its iconic campus. A light and welcoming arch-motif entry and perforated metal solar screens are used to convey a sense of forward-looking openness that will present the School of Business as a new front door to the campus. Organized around a multi-story flexible business commons, the building is composed of interactive classrooms, a financial services lab, a sales classroom, and several flat flexible classrooms, all supported by breakout rooms, faculty offices, and student support facilities. The building incorporates a sustainable approach and achieved 2 Green Globes certification. The project was completed by Liollio Architecture in association with ikon.5 architects.

Photo © Brad Feinknopf
Photo © Brad Feinknopf
Photo © Brad Feinknopf
Photo © Brad Feinknopf
Photo © Brad Feinknopf
Photo © Brad Feinknopf
Photo © Brad Feinknopf
© Brad Feinknopf
Drawing © ikon.5 architects
Drawing © ikon.5 architects
Drawing © ikon.5 architects
Architekci
ikon.5 architects
Rok
2021
Project Status
Built
Klient
The Citadel
Zespół
Liollio Architecture in association with ikon.5 architects
Structural Engineer
4SE, now Ellinwood + Machado
MEP Engineer
DWG Inc, Consulting Engineers
Civil Engineer
ADC Engineering
Landscape Architect
ADC Engineering
Acoustical Consultant
The Sextant Group
General Contractor
THS Constructors

Projekty powiązane 

  • Gymnasium Schulstraße
    Kronaus Mitterer Architekten
  • GROHE Water Experience Center
    D’art Design Gruppe GmbH
  • Limmatquai 4
    Kästli Storen
  • Volksschule Erlaaer Schleife
    Kronaus Mitterer Architekten
  • Ortsdurchfahrt Domat/Ems
    Luminum GmbH

Magazyn 

Inne projekty autorstwa ikon.5 architects 

North Campus Residential Expansion - Phase 1 – Cornell University
Ithaca, USA
Tiedemann College of Business – University of South Florida
St. Petersburg, USA
Louis Vuitton | New York Office and Showroom
New York, NY, USA
Hockessin Public Library – New Castle County
Hockessin, DE, USA
Jane E. Heminger Hall | College of Nursing | The Ohio State University
Columbus, USA