Umbau Café und Bäckerei Kornsilo in der Mühle Tiefenbrunnen, Zürich
Seefeldstrasse 231, Zürich, Switzerland
Geschichte
Die alten Gebäude der Mühle Tiefenbrunnen wurden 1889/90 als Brauerei mit aufwändigen Repräsentationsfassaden in Sichtbackstein erbaut. Das im „Schlösschenstil“ gestaltete Äussere ist typisch für die Bauten der Nahrungsmittelindustrie der Belle Epoque. 1913 wurde das Hauptgebäude zur Mühle umgebaut. Die von der Familie Wehrli betriebene Mühle war bis zu ihrer Stilllegung eines der letzten Beispiele der vertikalen Gruppenantriebsmechanik. 1983 wurden die Gebäude als eines der ersten Industrieareale umgenutzt, eine breite Vielfalt und Durchmischung von Wohnen und Arbeiten, öffentlichen und kulturellen Nutzungen wurde realisiert.
Projekt
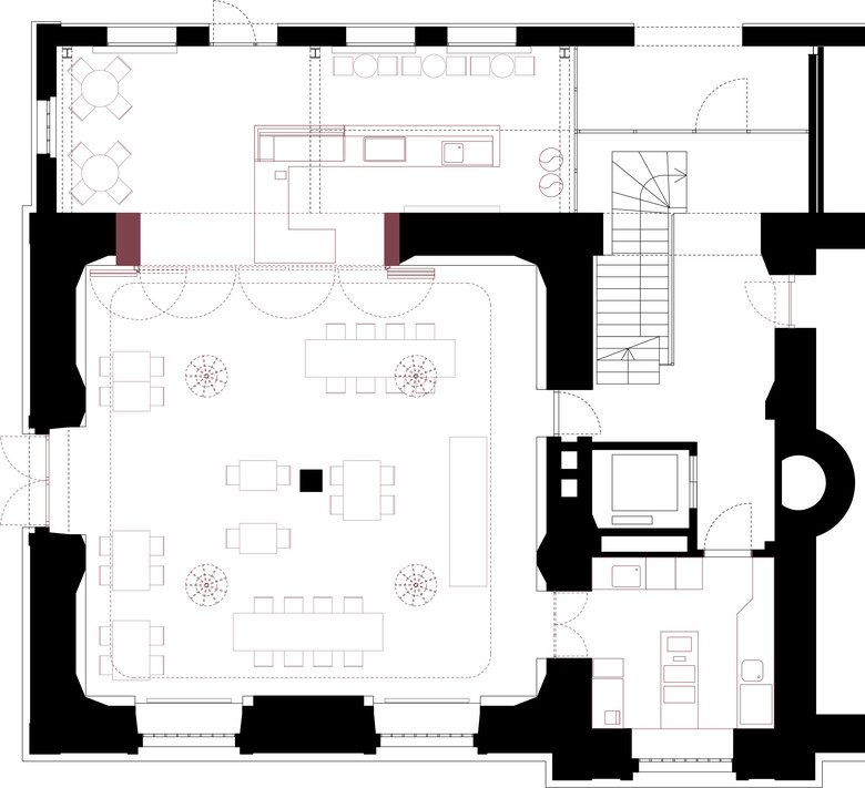
2016 wird das ehemalige Ladenlokal in der Mühle Tiefenbrunnen von Christa de Carouge zu einem Cafe umgenutzt. Ein neuer Zugang an der Stirnseite des Gebäudes verbindet den grossen Hauptraum zum Hof. Über eine grosszügige Öffnung wird der Hauptraum an den Vorraum im Anbau angebunden, ohne jedoch die Ablesbarkeit der Gebäudestruktur zu zerstören. Die 1983 eingebaute Gallerie im Hauptraum wurde zurückgebaut um einen grosszügigen Gastraum schaffen zu können. Wo immer möglich wurden die Zeitschichten im Innenraum erhalten - die Bruchstein- und Klinkerwände der Brauerei, die Wände des Betonsilos der Mühle von 1913, sowie die Betoneinbauten von Christa de Carouge. Der Bestand wurde mit einzelnen, raumbildenden Objekten additiv ergänzt - die neue Theke, deren Keramikverkleidung die Materialisierung der Brauerei thematisiert, die eigens für den Raum entwickelten Kronleuchter sowie die farbigen Tische mit rotem Linoleum, die mit alten Holzstühlen von Werner Max Moser kombiniert werden. Durch wenige, punktuelle Akzente wird eine neue Atmosphäre geschaffen und gleichzeitig die für den Raum charakteristische rohe, industrielle Anmutung beibehalten.
- Architekci
- Bhend & Schlauri Architekten ETH SIA
- Rok
- 2015-2016, © by bhend.klammer architekten
- Project Status
- Built










