Haus Elise
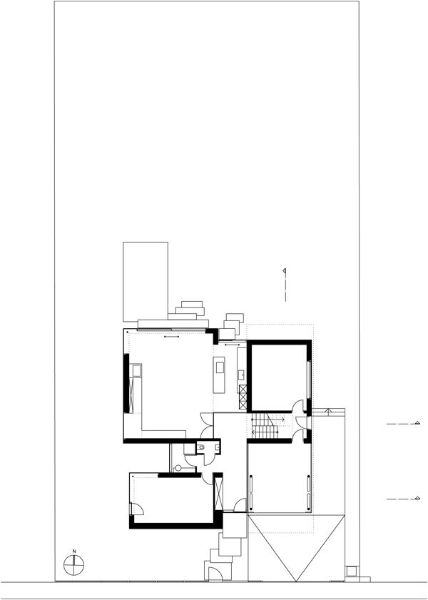
Der Wunsch der Auftraggeber, dem jugendlichen Sohn einen eigenen, unabhängigen Bereich zu schaffen, wird zum Hauptthema des Entwurfs und organisiert die Raumabfolge des Hauses. Die drei unterschiedlich proportionierten Baukörper sind in ihrer Größe und Höhe den einzelnen Nutzungen angepasst und beherbergen die Wohnbereiche, vebunden über ein niedriges Rückgrad, indem die Nebenräume und die Küche sowie die Stiegen untergebracht sind.
- Rok
- 2009
- Project Status
- Built








