Haus N
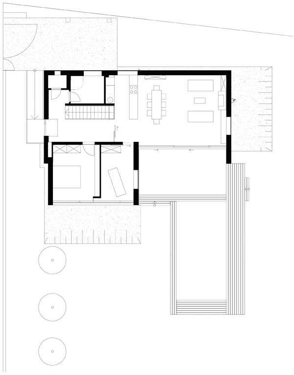
Der Entuwrf sieht zwei ineinander geschobene Quader vor, die beide zum Garten über Glasfassaden geöffnet sind. Alle anderen Fassaden bieten nur punktuelle Ausblicke. das Haus bietet alle wichtigenRäume auf einer ebene, einen großzügigen Wohn - Essraum und die Schlafräume mit Blick in den Garten. Der Pool ist direkt vor der windgeschützten Terrasse angelegt, um das Element Wasser in das Raumerleben einzubeziehen.
- Year
- 2003
- Project Status
- Built








