US' PRIME 1885
Project name: US' PRIME 1885
Client: Sansheng Future Group
Design firm: AD ARCHITECTURE
Website: http://www.arch-ad.com/
Email: office@arch-ad.com
Chief designer: Xie Peihe
Location: Wuxi
Area: 700 square meters
Main materials: stone, glass, wooden flooring, textured paint
Design time: August 2023
Completion time: November 2023
Construction firm: Hangzhou Xuxin Architectural Decoration Co., Ltd.
Photography: Jack Qin
Established by Sansheng Future Group in 2016, Steak House is a Western restaurant brand featuring precise control across various aspects, from ingredients sourcing to culinary techniques, nuanced flavors of cuisine, and systematic training of its staff. Its thoughtful services have been consistently refined, focusing on service process, table culture, etiquette, and culinary culture. With a commitment to creating an authentic Chinese steakhouse, the brand underwent a comprehensive upgrade in both cuisine and services in 2022. This evolution has given rise to the emergence of a new brand – US' PRIME 1885.
The dining space, integral to the overarching experiential journey, communicates the brand's philosophy and social responsibility well before the culinary offerings. Drawing inspiration from the brand's cultural ethos, the space design effortlessly fuses Oriental and contemporary sensibilities, conveying a contemporary Oriental aesthetic.
As the first restaurant of US' PRIME 1885 in Wuxi, the project is nestled on the ground floor of the MixC, embraced by Taihu Lake and boasting a refreshing leisure ambiance.
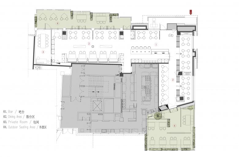
Entrance / well-organized and engaging
Located on the ground floor of the mall's rear outdoor platform, the restaurant's entrance offers a picturesque view of Taihu Lake. The dining experience begins before stepping into the interior. An outdoor dining area seamlessly blends with the entrance, creating a street-front commercial atmosphere which evokes a leisurely and relaxing lifestyle. The unpretentious entrance leaves more space to the outdoor dining area, enhancing the efficiency and overall space mood, to engage with customers.
Reception foyer / centerpiece
The service bar at the reception foyer is a centerpiece of the interior. It not only enhances the overall atmosphere, but also optimizes the circulation of the space, enhancing guest services. The service bar integrates various functions, including reception, wet bar, cashier counter, and the display of wine and steaks, showcasing high functionality and accentuating the distinctive identity of the restaurant. Upon entering the space, the guests are immediately immersed in the brand's catering culture and sophistication in its culinary offerings.
Open dining area / relaxing and tranquil
The opening dining area serves as the main source of revenues for the restaurant's operations. We have maximized its scale and strategically positioned it to link with the outdoor area to enhance the dining experience and enrich the overall atmosphere. Additionally, the placement of functional cabinets in the aisles not only increases privacy but also elevates the overall service quality, creating a casual yet luxury experience.
Private rooms / intimate
To address the issue of low utilization of private rooms, modular dining tables have been selected. These tables can be flexibly combined to meet functional needs and make the most efficient use of space during operation. The contrast of the red screens and the green hanging painting creates a harmonious blend of Eastern and Western cultures, infusing the space with a balanced sense of warmth and tranquility.
Balance between business and culture
A key consideration in designing the space was to create a Chinese steakhouse that offers a unique, borderless dining experience, rather than simply emphasizing a Western restaurant identity just because it serves Western cuisine. Our objective is to provide diners an authentic encounter with Western cuisine while incorporating distinctive Chinese cultural influences into the overall experience.
- Any
- 2023
- Estat del projecte
- Construït
































