world-architects.com
Profiles of Selected Architects
Perfils
Projectes
Feines
Esdeveniments
Revista
Temes
Xarxa
Iniciar sessió
Registra't
Català
Català
Deutsch
English
Español
Français
Italiano
Nederlands
Português
中文
日本語
Català
Deutsch
English
Español
Français
Italiano
Nederlands
Português
中文
日本語
World-Architects
Perfils
Architects
AMAA
About
Projectes
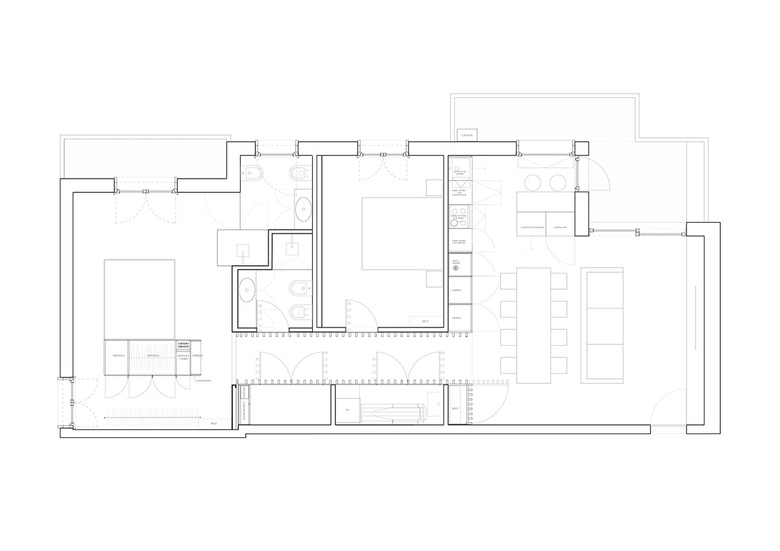
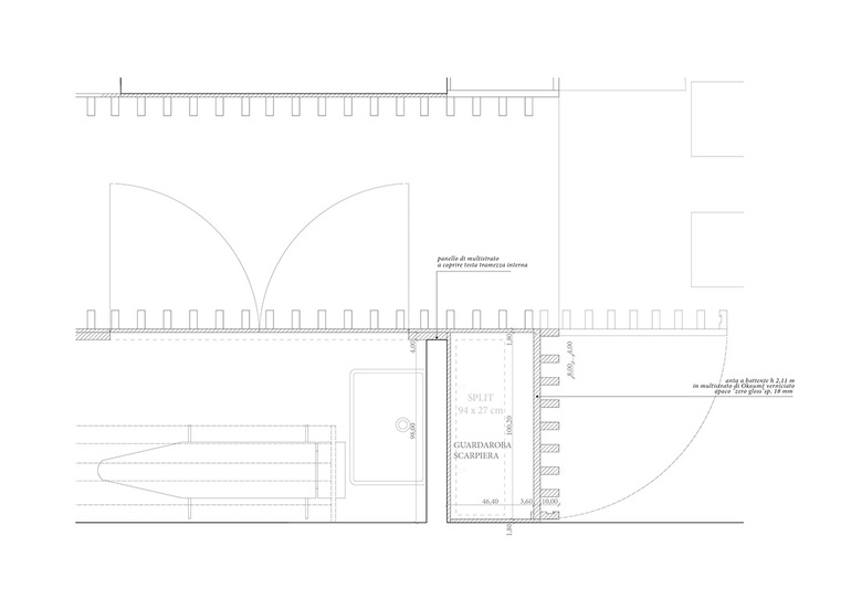
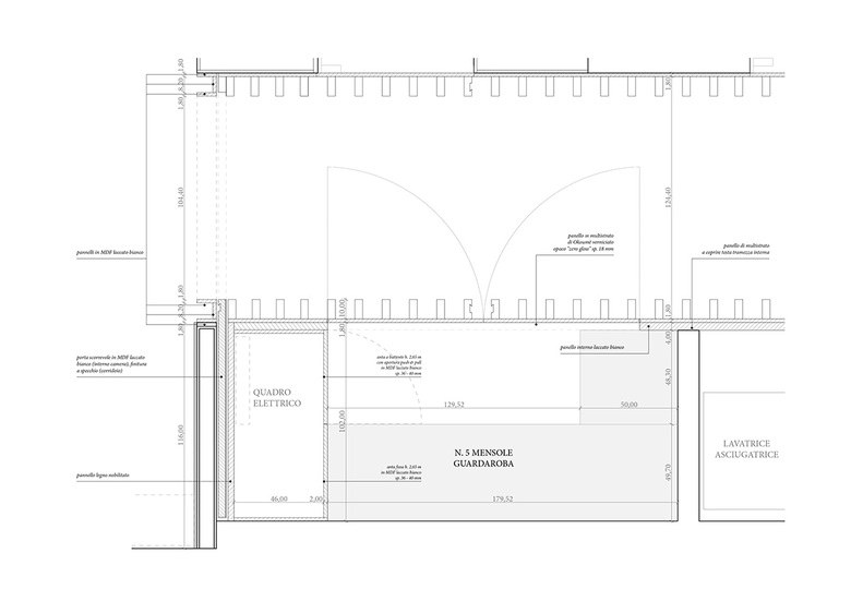
T – House
Arzignano , Italy
© A+M2A
© A+M2A
© A+M2A
© A+M2A
© The Cool Couple
© The Cool Couple
© The Cool Couple
© The Cool Couple
Habitatge unifamiliar
Any
2018
Estat del projecte
Construït
Equip
Arch. Mario Azzarello
Altres projectes per AMAA
Casa Veronica
Venezia, Italy