AKH The Barcode
Neues Landmark für Wien durch Bauen im Bestand: Der neu umgebaute Büroturm The Barcode am Universitätsklinikum AKH Wien ist fertiggestellt – und mit seiner eleganten Alufassade weithin sichtbar
(Wien) Das Gebot der Stunde lautet Bauen im Bestand. Bodenverknappung und Ressourcenschonung waren auch am gemeinsamen Standort von AKH Wien und MedUni Wien die ausschlaggebenden Kriterien für den Umbau und die Sanierung eines ehemals 20-geschossigen Personalwohnhauses an der Lazarettgasse. Der in den Jahren 1964 bis 1967 errichtete Turm stand das letzte Jahrzehnt bereits leer und wurde nun mit der Planung durch Architects Collective ZT GmbH zu einem hochmodernen Büroturm umgebaut.
The Barcode erfüllt alle Anforderungen modernen Arbeitens, eingezogen sind inzwischen Teilbereiche des Wiener Gesundheitsverbunds und des Universitätsklinikums AKH Wien. Nach Abschluss der Umbau- und Sanierungsarbeiten sind am The Barcode Büros und Dienstzimmer untergebracht, die keine Patient*innennähe benötigen, genauso wie im noch umzubauenden Zwillingsturm nebenan. Ebenfalls von Architects Collective, wird aktuell bereits am Umbau dieses Büroturms The Barcode 2 geplant, Fertigstellung ist für 2026 vorgesehen. Im AKH-Hauptgebäude entstehen durch die beiden Bürotürme indessen freie Flächen, die für den medizinischen Betrieb genutzt werden, bspw. für die perioperative Intensiveinheit, die Erweiterung des Notfall-Unfall-Bereichs und die Integration der Neurochirurgie.
Bauen am Bestand: Herausforderung und Gebot der Stunde
Die besondere Herausforderung des Projekts bestand darin, die hohen Ansprüche zeitgemäßen Hochhausbaus und modernen Arbeitens am Bestandsgebäude zu erfüllen. Die Basis war ein schadstoffbelasteter und wenig attraktiver Turm der 60er Jahre. Die gelungene Kombination aus stringentem Gestaltungskonzept und funktionalen wie bauphysikalischen Adaptierungen mit dem zentralen Nachhaltigkeitsgedanken prägen das Leuchtturmprojekt an diesem besonderen Ort im Kontext der Gesundheitsförderung.
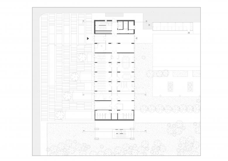
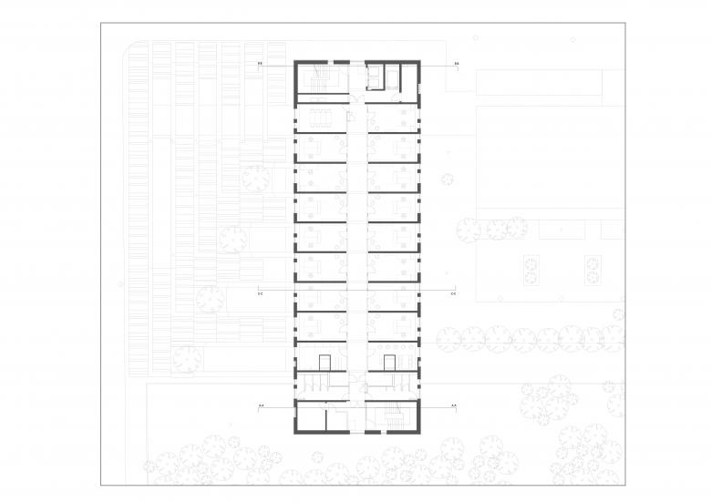
Der Turm wurde völlig entkernt, lediglich das Stahlbetonskelett blieb. Trotz statischer und geometrischer Zwänge wurde eine völlig neue Struktur geschaffen, die größtmögliche Flexibilität und Effizienz in den alten Bestand bringt. Ein flexibel teilbares Seminarzentrum im Erdgeschoss, moderne Büroetagen und die bauphysikalische und technische Sanierung sind wesentliche Elemente des Umbaus. Durch die Erneuerung und Verlagerung der Haustechnik auf das Dach besteht nun im obersten Geschoss eine offene Landschaft, die alle Ansprüche an moderne Arbeitsplätze erfüllt. Die neue, thermisch optimierte Fassade aus weiß changierenden Metall-Paneelen im Barcode-Muster wird gekrönt durch den gläsernen Abschluss auf eineinhalb Geschossen.
Das zeitgemäße Raum- und Nutzungskonzept und die weithin sichtbare Fassade erfüllen dabei die Nachhaltigkeitsziele der Stadt Wien. Die bewusste Entscheidung zur Nachnutzung eines bestehenden Gebäudes und die großflächige Photovoltaik-Fassade an der kompletten Südseite des Turms stellten Ressourcenschonung und Klimaschutz von Beginn an in den Fokus des Umbaus. Altlasten wurden mit fachkundiger Schadstoffsanierung beseitigt. Kritische Baustoffe wurden unter höchst strikten Auflagen rückgebaut oder entsorgt. Das Pflaster am neuen Vorplatz greift ebenfalls das Barcode-Muster auf, gefaltete Stahlbeton-Fertigteile erzeugen Elemente der Stadtmöblierung wie die Zugangsüberdachung, Sitzbänke und Pflanztröge mit winterfesten Heilpflanzen und Ginkgo-Bäumen und laden zum Verweilen und Ausruhen ein.
Attraktive Architektur für Fassade und Innenraum
Die opaken Fassadenelemente aus unterschiedlich breiten Aluminiumpaneelen sind frei positioniert. Hochreflektierende Paneele erzeugen mit verschiedenen leicht changierenden Weißtönen den Barcode-Effekt der Fassade, welcher dem neuen Bürogebäude den Namen gibt. Horizontale Bänder gliedern die Fassade in der Vertikalen. Das oberste Geschoss mit Pfostenriegel-Fassade setzt dem Büroturm die Krone auf. Die transparenten Elemente der Fassade sind für die besonderen Anforderungen eines Hochhauses als Verbundfensterkonstruktionen ausgeführt. Dies ermöglicht die Reinigung der Fenster und die Servicierung des Sonnenschutzes von innen, aufwändige Fassadenbefahranlagen sind somit hinfällig.
Verglaste Systemwände im Inneren schaffen größtmöglichen Lichteinfall sowie Transparenz und erzeugen auch in der Gebäudemitte ein zeitgemäßes und luftiges Arbeitsumfeld. Das Seminarzentrum im Erdgeschoss für bis zu hundert Personen ist durch mobile Faltwände völlig flexibel für verschiedene Besprechungssituationen teilbar. Die Open Spaces der Büroetagen bieten vielseitige Settings für spontane Meetings, alternative Arbeitsbereiche und Relax-Zonen. Die Farben der Corporate Identity des Wiener Gesundheitsverbundes – Petrol, Grün, Mint, Blaugrau und die Materialien Holz, Metall und Glas – erzeugen eine elegante und zugleich angenehme Atmosphäre für alle Mitarbeiter*innen.
Das Ergebnis ist eine ansprechende Architektur mit neuer urbaner Aufenthaltsqualität, die den dezenten Charme der Roaring Sixties mit dem Barcode-Muster in die 2020er Jahre übersetzt und den gemeinsamen Standort von AKH Wien und MedUni Wien aufwertet. Bis 2030 wird mit einem Investitionsvolumen von 1,4 Milliarden Euro – 60 Prozent Stadt, 40 Prozent Bund – und mit insgesamt 16 Baubereichen eine hocheffiziente Infrastruktur der Spitzenmedizin für Patient*innen, Forschung und Lehre auf internationalem Top-Niveau geschaffen. Das AKH Wien zählt zu den größten und besten Kliniken der Welt und bereitet sich mit diesen umfassenden Modernisierungen für die Herausforderungen der Zukunft vor.
- Any
- 2024
- Estat del projecte
- Construït















