Wohnüberbauung Jasminweg
Die Baukörper werden als offene Hofrandbebauung entlang der, das Areal umgebenden, Strassen gesetzt. Die Bauten bilden an ausgewählten Stellen differenzierte Öffnungen, welche an die umliegende Stadtstruktur anknüpfen, Einblicke gewähren und in eine Abfolge räumlicher Sequenzen führen. Die Neubauten ersetzen eine Siedlung aus den Zwanzigerjahren und wurden in zwei Etappen realisiert.
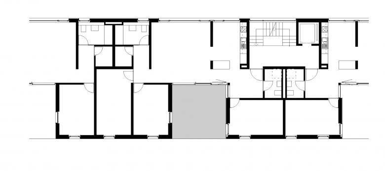
Eingefasste Felder mit Baumgruppen erzeugen Orte unterschiedlicher Charakteren mit abwechslungsreichen Lichtstimmungen. Der neue Winkelbau erhält im langen Schenkel zweigeschossige Gartenwohnungen mit eigenem Sitzplatz. Darüber sind Geschosswohnungen organisiert. Im kurzen Schenkel befinden sich Wohnungen unterschiedlicher Grösse. Diese werden mit gemeinschaftlich genutzten Räumen im Erdgeschoss von einer Hausgemeinschaft selber verwaltet. Kleinwohnungen für Single- und Zweipersonenhaushalte werden im scheibenförmigen Volumen über einen Laubengang erschlossen.
Die Fassade bilden hinterlüftete, geschosshohe Eternittafeln, die sich mit ebenfalls geschosshohen Fenstern abwechseln. Der Sockel ist in einem glatten, anthrazitfarbenen Verputz gehalten.
Die 1. Etappe umfasst 68 2.5-6.5 Zimmer-Wohnungen.
Die 2. Etappe umfasst 65 2.5-5.5 Zimmer-Wohnungen, davon sind 7 Garten-Maisonette-Wohnungen im Süden.
- Any
- 2011
- Estat del projecte
- Construït
- Client
- ABZ Allgemeine Baugenossenschaft, Zürich
- Bauingenieur 1. Etappe
- APT Ingenieure GmbH, Zürich
- Bauingenieur 2. Etappe
- Gruner + Wepf AG, Zürich
- Bauphysik
- Bakus GmbH, Zürich





