Lehmenweg
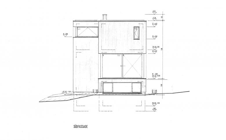
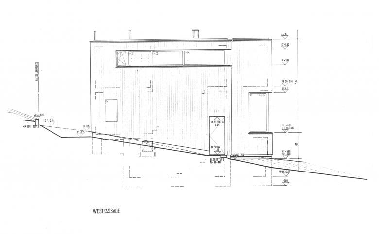
Die Bauherren – ein Ehepaar mit zwei Kindern – erhielten die Möglichkeit, auf dem Grundstück der Eltern der Bauherrin ein Einfamilienhaus zu realisieren. Der Standort wurde so gewählt, dass eine spätere Entwicklung des übrigen Landes nicht eingeschränkt wird. Die Wahl fiel auf eine schmale Zone zwischen dem Elternhaus und der westlichen Parzellengrenze. Das geneigte Gelände, die Nähe zum bestehenden Wohnhaus und die Aussicht über die weite Wiese prägten das Konzept. Da keine räumliche Distanz zum Nachbarhaus möglich war, entstand die Idee, durch klare Form und Materialität eine eigene Identität zu schaffen. Der Baukörper präsentiert sich als präziser, hölzerner Kubus, der sich durch seine markante Erscheinung bewusst von der Umgebung absetzt.
Das Raumkonzept ist einfach und funktional. Der Eingang liegt auf dem Niveau eines Zwischengeschosses, von dem ein halber Treppenlauf ins offene Wohngeschoss führt. Wohn-, Ess- und Küchenbereich bilden einen grosszügigen Raum, der durch eine innenliegende Treppenwand zoniert wird. Raumhohe Eckfenster rahmen die Landschaft und eröffnen weite Ausblicke. Über eine offene Treppe gelangt man ins Obergeschoss mit drei Schlafzimmern und einem Bad, die entlang der belichteten Treppen- und Gangzone angeordnet sind. Im Hanggeschoss befinden sich Technikräume, ein WC und ein vielseitig nutzbarer Raum, der durch eine perforierte Holzschalung natürlich belichtet wird.
Das Gebäude wurde für seine architektonische Qualität mit der Auszeichnung guter Bauten des Kantons Solothurn gewürdigt.
- Any
- 1998
- Estat del projecte
- Construït








