AppLike Büroausbau
Für das erfolgreiche Start-up AppLike entwickelte BAID auf über 3.000 Quadratmetern moderne „Kreativgaragen“. BAID setzte sich mit einem auf Wachstum und Flexibilität orientierten und auf die individuellen Bedürfnisse der überwiegend jungen Teams abgestimmten Innenraumkonzept im Ideenwettbewerb gegen zwei Mitbewerber durch.
Die AppLike Group entwickelt Lösungen im Bereich der Mobile User Acquisition.
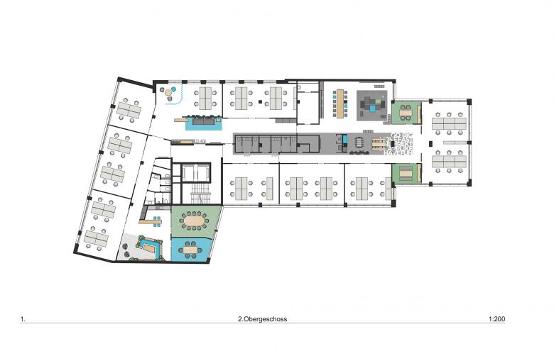
Für jeden der drei Geschäftsbereiche der AppLike Group, die jeweils eine Etage einnehmen, entwarf BAID eine eigenständige Farb- und Themenwelt, die im Zusammenspiel ein harmonisches Ganzes ergeben. Jeweils ein eigener „Codec“ liegt der individuellen Gestaltungsidee der drei Bereiche zugrunde. Er findet sich in deren Bezeichnung wieder und prägt das jeweilige Stockwerk: „Local“, „Space“ und „Code“. Eigens dafür entwickelte Wandgrafiken und Folienplots für die Glastrennwände ziehen sich als roter Faden durch die entsprechenden Bereiche, strukturieren die Bürowelt und unterstützen bei der Orientierung. So begegnen Mitarbeitern und Besuchern auf den unterschiedlichen Etagen die Namen der Hamburger Stadtteile („Local“), die Planeten unseres Sternensystems („Space“) und Sequenzen aus Programmiercodes („Code“).
AppLike zog vom Hamburger Szeneviertel Schanze an die exklusive Alsterlage im Stadtteil St. Georg. Wunsch der Bauherren an BAID war, den innovativen Start-up-Charakter des ehemaligen Standorts zu bewahren, was den Planer mit einer Kombination aus „roughen“, ehrlichen Materialien, dem Einsatz von akzentuierenden Farben und anderen witzigen Details gelang. BAID gestaltete eine offene, funktionale und flexible Raumabfolge, die auf die spezifischen Bedürfnisse der Mitarbeiter sowie die Abbildung der notwendigen Kooperationsstrukturen abgestimmt ist. Kommunikation und Diskurs finden ihre architektonische Entsprechung in einer passenden Anordnung von „Start-up-Garagen“ mit großen, dunkel gefassten Glasflächen und Blickachsen nach innen und nach außen auf die Alster. Die „Kreativgaragen“ genannten Arbeitsräume sind entlang der Fassade angeordnet, in der Mittelzone befinden sich die Sanitäreinrichtungen und an markanten Kreuzungspunkten wurden die Teeküchen und detailverliebte Aufenthaltsbereiche arrangiert.
Eine ausgewogene Mischung aus unterschiedlichen Arbeitszonen und Rückzugsbereichen prägt die drei Etagen. Das Angebot wird um Konferenz- und Projekträume ergänzt; für größere Zusammenkünfte und besondere Anlässe steht eine große Aula mit Tribüne im dritten Obergeschoss zur Verfügung. Auch technisch wurde das Projekt auf dem neuesten Stand entwickelt, um die spezifischen Anforderungen des digitalen Geschäftsfeldes von AppLike zu erfüllen und den Vorgaben für flexible Arbeitsplätze mit Desksharing-Modellen gerecht zu werden.
BAID entwarf für den Büroausbau einen Großteil der Einbauten und Möblierung, wie die raumfüllenden Sitzpodeste der Aula und die Möbel für die offenen Küchen und Loungebereiche aus Seekiefer, die Hochtische, die Streckmetall-Trennwände und die abschließbaren „Spinde“ in den Arbeitsbereichen. Selbst die Picknickbänke in knalligem Orange oder Grün wurden nach Entwürfen von BAID maßgefertigt. Als Bodenbelag wählten BAID ein langlebiges Linoleum in Hellgrau, wobei die Mittelzone in Schwarz abgesetzt wurde. In den Konferenzräumen und zur Betonung der Aufenthaltsbereiche kommen sich überschneidend konfektionierte Teppiche zum Einsatz, die zusätzlich die Raumakustik positiv beeinflussen. Deren Farben entsprechen der jeweiligen Farbwelt und die Ränder der abgepassten Teppiche sind entweder passend oder kontrastierend gekettelt.
Besonderen Wert legte BAID auf eine ebenso flexible wie angenehme Arbeitsatmosphäre mit einer guten Raumakustik. Eine bauseitige Betonkernaktivierung in den Decken ermöglichte eine offene Deckengestaltung, sodass die Innenarchitekten mit unterschiedlichen Materialien und Lösungen agieren mussten: In den „Garagen“ kommen Metalllamellendecken und in den Konferenzräumen dekorative Akustikpaneele aus Filz zum Einsatz. Blickfänger in den offenen Bereichen sind die verschiedenfarbigen, abgehängten Akustikbaffeln aus groben gepressten Holzspänen, die mit ihrem industriellen Erscheinungsbild gut zum gesamten Gestaltungs- und Materialkonzept passen.
BGF 3.100 m2
Leistungsphasen 1-9
- Any
- 2021
- Estat del projecte
- Construït
- Client
- Gruner + Jahr
- Ausführendes Unternehmen
- Lindner SE















