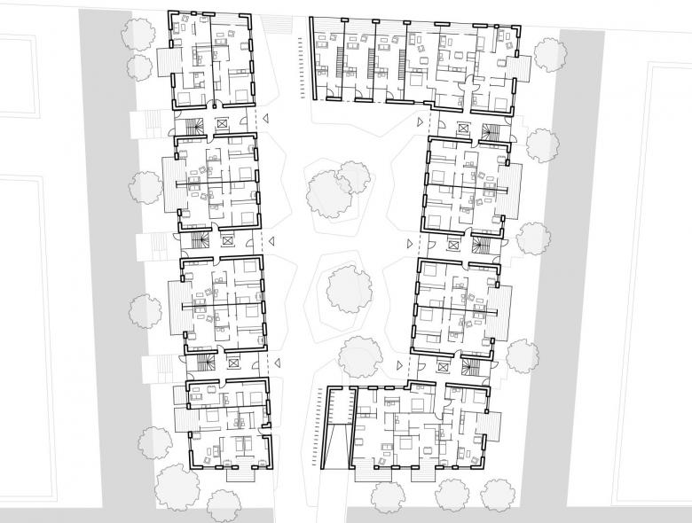
Hafeninsel IV Flösserhof
Von Wasserflächen umschlossen bieten die Mainzer Hafeninseln auf dem alten Zollhafen-Areal eine Vielzahl an Qualitäten. Zugleich fordern der schwierige Zugang und die Nähe zum Industriegebiet besondere Brand- und Schallschutzmaßnahmen. Der Flösserhof ist als wohnlicher Gartenhof gestaltet. Seine Gebäude bilden eine homogene, geschlossene Blockstruktur, die einen üppigen grünen Garten mit Laubgehölzen, Stauden und Sträuchern im Inneren beherbergt. Treibholzartige Sitz- und Spielmöbel geben dem Namen des Hofes Bedeutung.
Die Erschließungstreppen der Wohngebäude öffnen sich durch Balkone hin zu den Grachten. Terrassen, die bis ans Wasser reichen, schaffen im Erdgeschoss attraktive Räume zur gemeinschaftlichen Nutzung.
Um möglichst vielen Bewohnern einen Ausblick auf das Hafenbecken zu ermöglichen, sind die Loggien durch kleine auskragende Balkone erweitert. Zum Hafengefühl tragen auch die gewählten Materialien bei: gebrochene Ziegel vermitteln Rauheit, ergänzt durch Elemente in Schwarzstahloptik und Glas.
- Any
- 2024
- Estat del projecte
- Construït
- Client
- UBM Development Deutschland GmbH
- Landschaftsarchitekten
- Latz & Partner
- Technische Gebäudeausrüstung
- Planbar Ingenieure
- Tragwerksplanung & Bauphysik
- Grebner Ingenieure
- Brandschutz
- Petry & Horne




