MZ House
M house is placed in a little hill surrounded by vineyards, in the southern Garda, close to the town and only a few steps away from the Natural Reserve of the Frassino Lake.
This amazing natural Environment, enriched by the silent presence of the Mount Baldo, provide us the inspiration for the project.
The two overlapping volumes in shape of “L”, rotated between them, define the spaces of the house and they suggest the directions where to redirect the glance: the one at the bottom offers a view of the countryside towards the Frassino Lake, while the one above is turned towards North, watching the Mount Baldo and the Garda Lake.
The interaction between the two volumes generates a patio and a large porch that provide shadow and protection to the spaces of the ground floor. These outdoor living areas are directly connected to the living room by a big glass window that allows a visual continuity between outside and inside spaces.
The aim of this strategy is not just to find the right point of view, but also to “split” the programme into two areas, one more public open onto the patio and a more “intimate” and contained one. If the upper wooden clad (larch) volume shows the structural soul of the building and mitigates the relationship between the house and the landscape, in the same time the “anchored” lower one gives support and stability to the house.
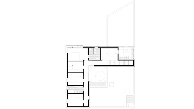
In terms of programmatic organization the ground floor contains the living area and garage, while the second floor contains three bedrooms and a studio. The master bedroom features a corner window with an unique view of the countryside.
The building is built entirely of wood using the x-lam technology providing material improvement in execution time and drastically reducing the environmental impact.
- Any
- 2014
- Estat del projecte
- Construït
- Equip
- CLAB architettura, Circlelab, Federico Signorelli














