Wettbewerb Dückerweg, Steffisburg

Visualització © Architron GmbH
Situation
Grundriss Erdgeschoss
Grundriss Untergeschoss
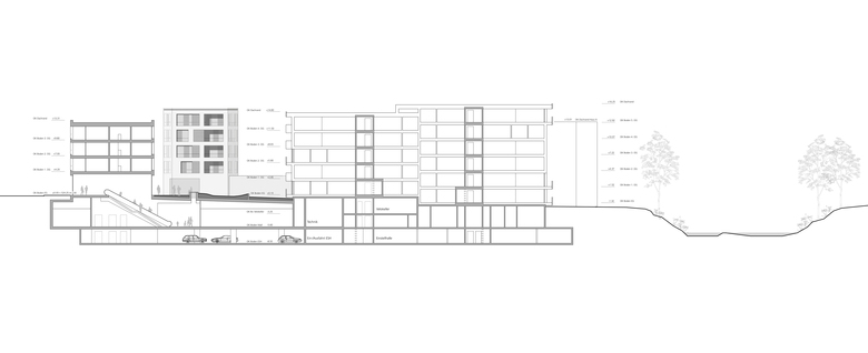
Schnitt
Fassadenschnitt Holzbauten
Fassadenschnitt Massivbauten
Estat del projecte
Disseny

Altres projectes per Dällenbach/Ewald Architekten AG 

Umbau Liegenschaft Zulgport
Unterlangenegg, Switzerland
Neubau Gartenpavillon
Steffisburg, Switzerland
Sanierung Liegenschaft Bälliz 54
Thun, Switzerland
Bauernhaus Ortbühlweg
Steffisburg, Switzerland
Erweiterung Waffenplatz Thun