Sublime Ordinariness
The housing project is located about 60 km to the north east of Mumbai which houses 54 families of staff working in the industrial facility of a color coating plant for a large corporate group.
Family, relatives and community play a critical role in Indian society. The housing has been designed keeping these socio-cultural realities in mind.
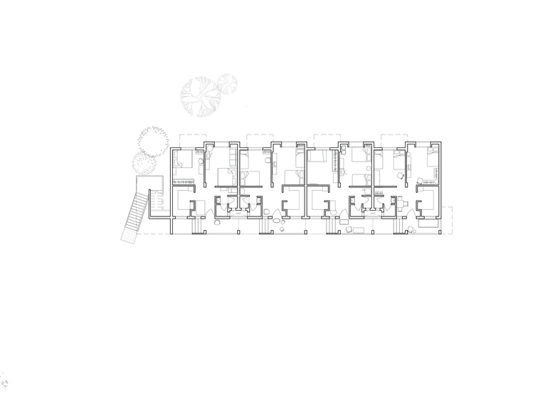
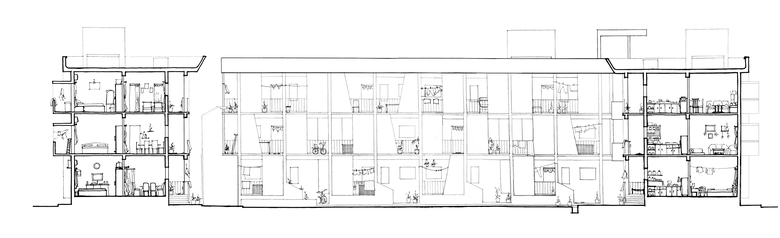
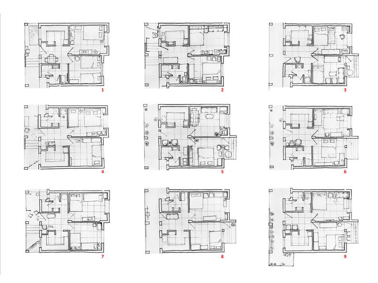
Using the Mumbai chawl as a reference to organize the spaces, we saw it as a typology with tremendous possibility of being a social catalyst. Four apartments of 540 sq. ft. each are strung along a corridor space. At the end of which sits the staircase. On the ground floor, the apartments are accessible individually having their own small semi private space, resembling the characteristic “otla” (raised entrance level plinth) seen in the traditional houses of India (pols, wadas etc). Three blocks come together along with the semi round monolithic block to form this large central community space into which all the corridors open.
The form of each staircase is carefully articulated to give each block a little twist and hereby giving each an identity of its own. The construction system is a very simple brick and concrete system using locally available artisans. The structural system is carefully calibrated to produce a facade which helps to scale the building to a more humane level.
The idea of the community and living together has been a key intent of this project. Corridors, staircases, balconies and “otlas” opening into a larger public space creating a rejuvenated community spirit and reinforcing a sense of belonging and togetherness for people living in industrial facilities.
- Any
- 2016
- Estat del projecte
- Construït
- Equip
- Quaid Doongerwala, Shilpa Ranade, Parin Visariya, Nikita Baliga, Kavana Kumar, Prakool Soni, Suresh Sawant
- Structural Consultant
- Asim Shah
















