Personalhaus Vogelsang Zürich

© Dominique Marc Wehrli
© Dominique Marc Wehrli
© Dominique Marc Wehrli
© Dominique Marc Wehrli
© Dominique Marc Wehrli
© Dominique Marc Wehrli
© Dominique Marc Wehrli
© Dominique Marc Wehrli
© Dominique Marc Wehrli
© dja
© dja
© dja
Any
2013
Estat del projecte
Construït
Auftraggeber
Kanton Zürich
Landschaftarchitektur
Berchtold. Lenzin
Kunst am Bau
Karim Noureldin
Wettbewerb
2010, 1. Preis
Aufgabe
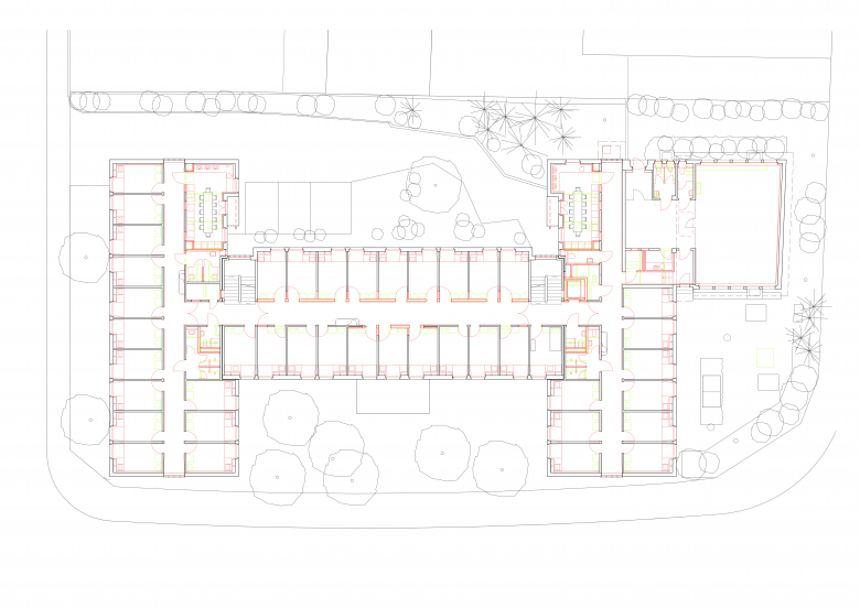
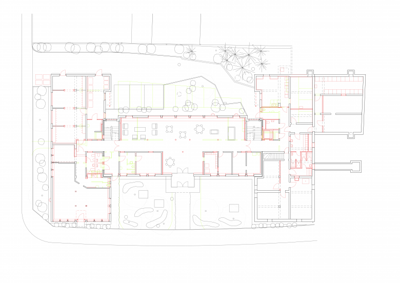
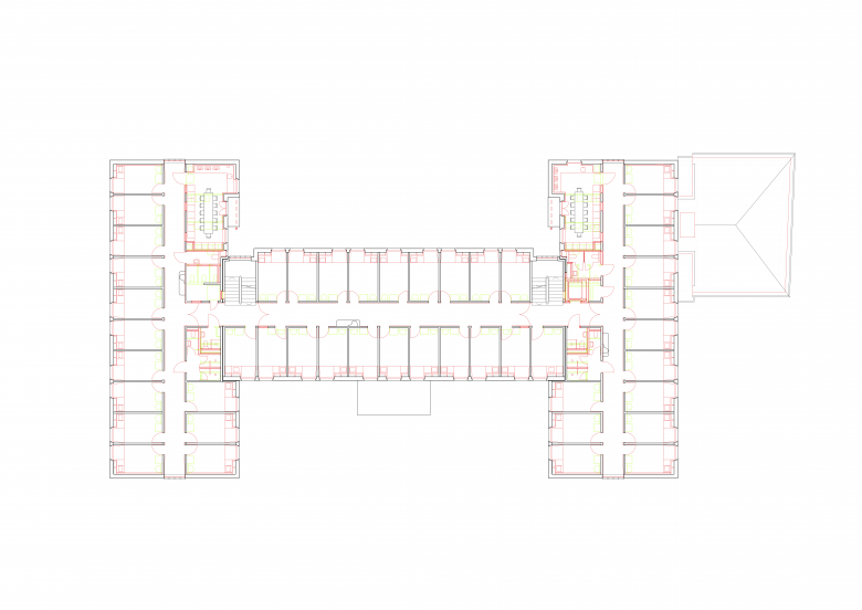
Grundlegende Sanierung des Personalwohnhauses für das Universitätsspital Zürich. Das 1955 von den Architekten Burzi + Hauenstein erstellte ehemalige Schwesternhaus ist ein erhaltens­werter Zeuge der Zürcher Architektur der 50er Jahre.
Programm
134 Zimmer, Sanitärräume, Freizeitraum und Gemeinschaftsküchen, Büros. Umsetzung behördliche Auflagen: Gebäudehülle, Asbestsanierung, Erdbebensicherheit, Brandschutz, Hindernisfreiheit.

Altres projectes per Derendinger Jaillard Architekten 

Gemeindehaus Münsingen
Münsingen, Switzerland
Kantonsschule Ausserschwyz Nuolen
Nuolen, Switzerland
Bahnhof Zürich Altstetten
Zugang Bahnhof Herrliberg / Feldmeilen
Collège Principal de Pully