Primarschule Riethüsli St.Gallen

© atelier brunecky
© atelier brunecky
© dja
© dja
© dja
© dja
© dja
© dja
© dja
Any
2012
Estat del projecte
En construcció
Auftraggeber
Stadt St.Gallen
Bauingenieur
AF Toscano
Haustechnik
Martin Pletscher
Bauphysik
Bakus
Wettbewerb
2012, 2. Preis
Aufgabe
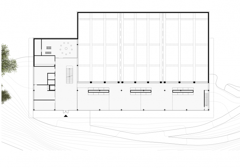
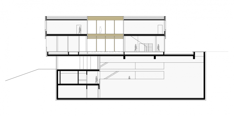
Neubau mit 12 Klassenzimmern als Tagesschule, Bibliothek / Mediathek, Mensa, Mehrzweckraum / Aula, Doppelturnhalle, Kindergarten, Pausen- und Sportplätze

Altres projectes per Derendinger Jaillard Architekten 

Gemeindehaus Münsingen
Münsingen, Switzerland
Kantonsschule Ausserschwyz Nuolen
Nuolen, Switzerland
Bahnhof Zürich Altstetten
Zugang Bahnhof Herrliberg / Feldmeilen
Collège Principal de Pully