School Complex Gloggnitz
Mies van der Rohe Award 22, nomination |
Austrian 'Bauherrenpreis 2021' |
Wood Construction Award Lower Austria 2021, special mention |
Gloggnitz is a municipality with 6000 inhabitants. 80 km southwest of Vienna, it lies very picturesquely at the foot of the Rax in the Austrian Prealps. Gloggnitz is an industrial town and regional center, which like all rural communities must struggle with a dying village center. Therefore, the small town decided to bundle its 3 so far separate schools (elementary school, new middle school, special educational center) in the Schulgasse in an attractive, common new building and to strengthen so the location. Two existing buildings were demolished in order to give the new building the greatest possible presence in the town center. This decision is a clear commitment of the municipality to education and youth, which makes Gloggnitz in the future also for young families more attractive.
2015 the municipality announced a competition for a contemporary, future-capable school center, whose educational guidance motive is the co-operation, the exchange between pupils, teachers and parents, as well as the mutual support and assistance.
The school center offers special teaching units: a music school, a training workshop equipped with workbenches, a well-equipped teaching kitchen, computer science and physics rooms and more. At the same time, the school opens to the city by hosting sports clubs, involving adult education and providing extra-curricular events.
The base of the school center symbolizes openness. It is completely glazed and thus permeable between inside and outside. The entrance is located close to the center in the north-west at a large public forecourt. The cantilevered first floor forms a wide canopy, which creates a weather-protected forecourt for the entrance area and literally pulls you inside. It forms the transition from the public outdoor area to the interior of the school.
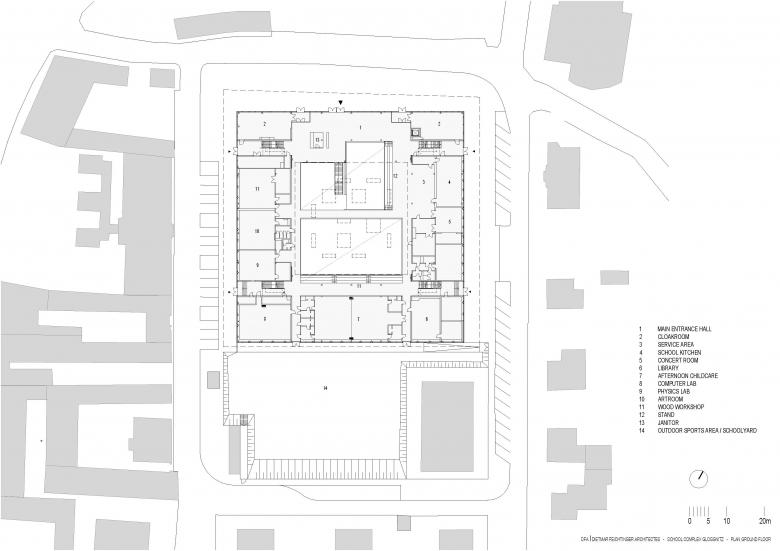
As soon as one enters the foyer, one notices the essential element of this complex design: three sports areas, as a generous 7.88-metre high, see-through volume, form the spatial and ideal center of the square floor plan. Skylight domes illuminate this open, central area with natural light, which is supported by a filigree, optimized, three-dimensional steel framework and spans 30 meters. The architecture of this spatial volume implements the ambitious, educational program of the new open and integrative school in three dimensions. The focus of the new secondary school is on sports, and in general, exercise is important for all children. It promotes concentration, coordination and learning ability in a holistic way. The rooms adapted to the different activities - the common gymnasium, the gymnastics hall, the climbing wall - stretch over all levels, from its floor level in the basement to its roof terrace on the first floor. Their clearance forms the luminous center of the foyer: glass balustrades and fine tensioned cable mesh as safety and ball throwing nets generate a visually continuous open space. The sports areas are bordered on two sides by glazed seating tribunes. They turn the gymnasium, gymnastics hall and climbing wall into a scene.
The school center is very clearly structured. The ground floor is the public area: at the entrance are two cloakrooms located, all classes for practical teaching and special lessons are arranged in a ring around the clear space for sports and exercise. They are easily accessible for external use via the foyer or the side entrances. The vertical circulation - stairs and lift - are placed in the edges of the building. The stairs designed as emergency exits are normally open. In case of a fire the access doors close automatically.
All classrooms for all three school types are located on a common level on the first floor. Their center is formed by the wooden roof terrace with prism-shaped skylight lanterns on the spacious volume of the sports areas. They provide a differentiated division of this large, common open space for all, which can also be used as an "open-air classroom". Around this open courtyard, new school is organized according to the cluster concept: openable classrooms are grouped around a so-called "marketplace", which merges into the open circulations. In this way, lessons can take place in an open space situation involving several classes. In that way, all areas become the setting for joint learning and living together across school types.
The teacher and administration areas are located on the second floor, which as a slender transom of the façade over the main entrance in the north-west gives more height and thus weight to the building. All rooms for teaching staff and management are arranged along a transparent corridor and around an internal terrace in the southeast.
The calm, unobtrusive, wood-clad structure of the school building, which rests on a transparent base, offers an undreamt-of degree of spatial diversity, sports and further education opportunities. Its opening was a folk festival: the best prerequisites for it to become a permanent cultural hub for the community.
- Any
- 2019
- Estat del projecte
- Construït
















