Österlen Farm House
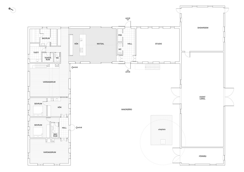
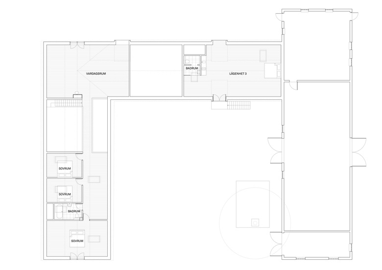
Grams Gård was built in 1851 and used as a farm until the 1980s by the Gram family. It is located in Österlen in Skåne. The farm is located on top of a small hill overlooking the sea; towards Hanö Bay beyond Simrishamn in the north and Bornholm is clearly visible to the south. In the west there are beautiful fields and Gladsax appears on the horizon.
The farm consists of three volumes, which form a courtyard with cobblestones, where the old pump and a large chestnut tree stand. This project of refurbishment has been designed combining tradition and innovation and with a strong material feeling. Black traditional roofing, white stone walls and some of the old windows preserved meet large window openings, oak, stone and concrete floors. The light flows from all directions with views to the garden and fields, the rooflights illuminate and warm the rooms in the upper floor and three large dormer windows open onto the landscape.
- Any
- 2018
- Estat del projecte
- Construït
- Client
- Private
- Equip
- Andy Nettleton, Ia Hjärre, Valentino Barbu, Ana Riesco
- Structural Engineer
- SG Svensson AB
- Main Contractor
- Thage Bygg












