Wettbewerb Berufsbildungscampus, 2. Rang
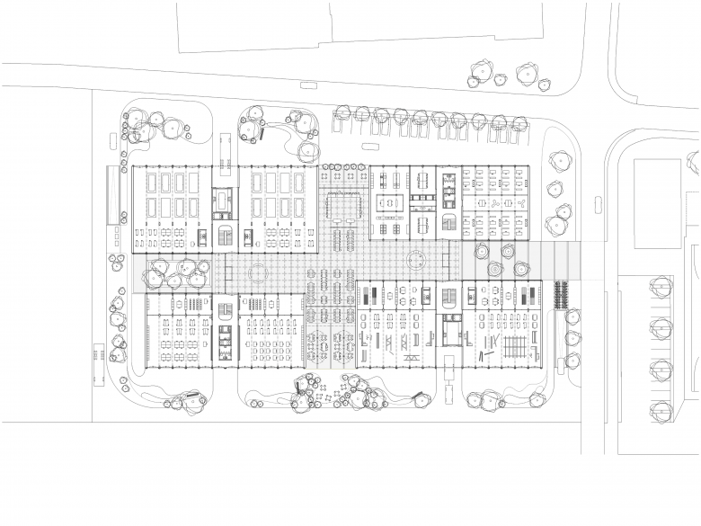
Die vier dreigeschossigen rechteckigen Gebäudekörper werden architektonisch gleich ausformuliert. Die Raumgruppen sind je in einem separaten Gebäude bzw. Gebäudeteil zusammengefasst. In der Mitte der Gebäudekörper befinden sich jeweils die Erschliessungskerne mit den Nebenräumen. Im Erdgeschoss werden sie auf der einen Seite mit dem Verbindungsbau und den Aussenbereichen verbunden. Auf der anderen Seite werden sie mit den Aussenwerkplätzen bzw. Anlieferungen verbunden. Rechts und links der Erschliessungskerne werden die Haupträume angeordnet. Sie werden wie die Erschliessungszonen auch optimal zweiseitig natürlich belichtet
Der eingeschossige Zwischenbau verbindet die vier Gebäudekörper miteinander. Die Fassaden werden komplett offengehalten und die Sicht in die Aussenräume wie auch in die naheliegende Umgebung werden durch die vier Gebäudekörper gestärkt. Der Zwischenbau fungiert als Begegnungs- und Verteilzone der gesamten Anlage.
- Any
- 2023
- Estat del projecte
- Disseny







