Housing Neufrankengasse
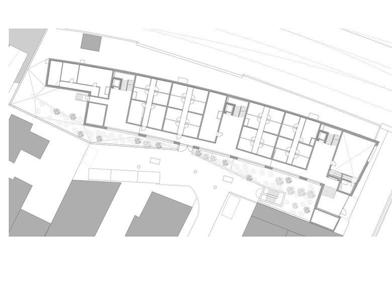
The project develops from the exciting location between two extremes: the inner city Kreis 4 (District 4) and an expansive area of railway tracks. The expansive quality of this “lake of a different kind” gives the place its exceptional quality.
The building responds to the external circumstances with a layered structure. The south-facing bedrooms and loggias look onto the quiet courtyard. Entrance halls, wet rooms and cloakrooms are centrally positioned. Living and dining areas profit from the breadth of the area of tracks and some are double height. Access to the building and the three staircases is from Langstrasse and from the courtyard through a naturally lit plinth level.
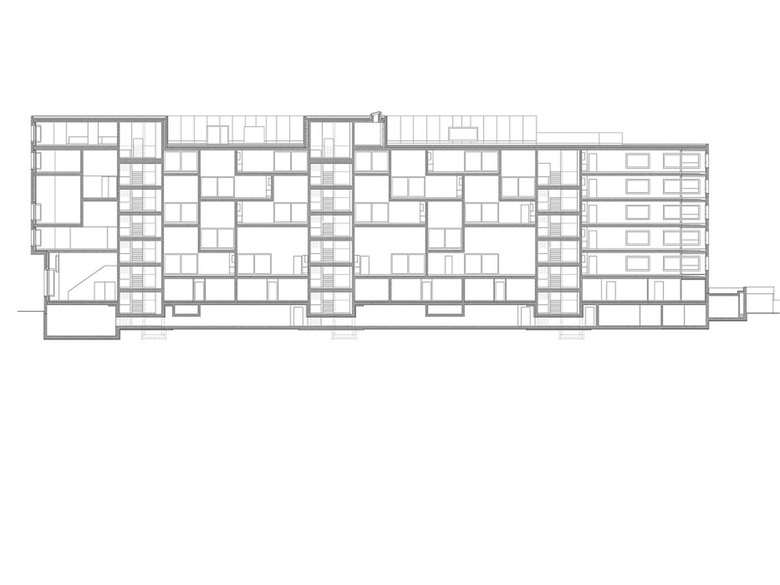
Externally the architecture expresses the inner structure. Towards the wide area of tracks large window openings permeate the regular appearance of the façade. The calm façade towards the more intimate courtyard uses repeated openings of the same dimensions.
- Any
- 2013
- Estat del projecte
- Construït
- Client
- SBB Immobilien
- Type of Commission
- Competition
- Competition
- 2008, 1st prize
- Planning
- 2009–2011
- Construction
- 2011–2013
- Space Program
- 29 condominiums
- Size gross floor area
- 5’800 m2












