Lucerne School of Art and Design
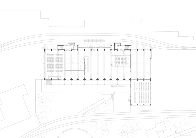
On the industrial site of the former monofilament manufacturer Viscosuisse and today’s Monosuisse AG in Emmenbrücke, a new urban district, to be known as the Viscosistadt, will be developed in the near future. While preserving the diversity of the existing buildings, the urban quality of the site will be further strengthened and developed. The first measure is the conversion of Building 745 into the new location for the Lucerne School of Art and Design. Part of the Viscosuisse legacy, this strongly expressive building shapes the character of the site. The structure has wide spans and is made up of columns, down-beams and prefabricated ribbed concrete ceiling slabs, producing generously sized, uninterrupted spaces. In order to preserve the quality of this fine example of Swiss engineering architecture and to make it usable, our intervention is as direct and restrained as possible.
The main entrance to the university is from the east via Nylsuisseplatz. Elements of the high-bay warehouse on the west side will be stripped away to open up the facade and to establish a connection to the park along the river. The open ground floor strengthens the university building’s connection to the park. This ground floor serves a zone where the public meets the university. It plays a central role in the planned development and in introducing life into the entire site. A café invites people to spend time there. Also located here are the ‘Aktionshalle’, a project space for exhibitions and events, and the library. A zone is established that can be used in a variety of ways. The Media Lab, which is open to all, forms the core of the 1st floor. The degree programmes ‘Camera Arts‘, ‘Art & Interpretation‘, ‘Fine Arts’, ‘Design’ and ‘Film’ will take place here and in the two floors above. The rooms on the 4th floor accommodate the management, administration and research facilities. For the most part they make use of the existing walls and spatial structure. The rooms for the degree programmes ‘Video’ and ‘Animation’, which require a certain degree of soundproofing, are located in the basement.
- Any
- 2016
- Estat del projecte
- Construït
- Client
- Viscosistadt AG
- Type of commission
- Direct commission
- Study commission ‘Monosuisse Site’
- 2012, 1st prize
- Commission
- 2013
- Planning
- 2013–2016
- Construction
- 2014–2016
- Tenants and user
- Lucerne School of Art and Design: more than 300 students, 110 lecturers and staff · Bachelor’s study courses ‘Art & Interpretati
- Space program
- Studios, workshops, sound studios, teaching areas, offices
- Size of site
- 5’000 m2
- Floor area
- 13’000 m2
- Usable floor area
- 10’600 m2
- Building volume
- 66’000 m3
- Building dimensions
- 81 m length, 32 m width, 27 m hight












