WIN4 Sports Centre

Grüzefeldstrasse, Winterthur, Switzerland
Fotografia © Roger Frei

The WIN4 Sports Centre in Winterthur is located beside the existing Deutweg ice arena. Catering for both mass and top-level sport, this new project is intended to have an impact far beyond the city of Winterthur. On this account a kind of architecture was aimed for that translates these national and international ambitions into a memorable architectural language. Three distinctively different building volumes form an ensemble and define a shared outdoor space. The first phase to be implemented consists of a new building for the ball sports arena with an adjoining campus building and a training hall to the south. Currently at the planning stage is the sports wing 2, which, when erected, will complete the ensemble consisting of arena and campus building. The three buildings are connected by a central covered foyer area. The strategy of using three independent buildings allows a clear urban statement to be made as early as the first stage. The multi-function training hall already augments the ensemble in the south, where it forms a termination to the existing, extensive sports pitches of the neighbouring sports park. As the final stage a six-part gym hall will complement and complete the sports cluster. The large ball sports arena, which swivels outwards to the south, is the new home for the handball players from Pfadi Winterthur, the Uni hockey association and other Winterthur sports associations. The heart of the arena is a central pitch, surrounded by raised spectator stands that provide space for up to 2000 spectators. All the necessary ancillary spaces such as changing rooms, press rooms etc. are accommodated at entrance level. Staircases positioned at the sides bring visitors up to the first-floor level. There, from the generously dimensioned surrounding circulation terrace, they can access the stands, numerous refreshment areas, the VIP enclosure, and the sanitary facilities. An underground garage in the basement of the ball sports arena offers 125 parking spaces. The neighbouring five-storey campus building houses a variety of sport functions, all of which are reached from a centrally positioned staircase. Sports medicine, fitness with integrated wellness facility, and a sports school with classrooms augment the functions of the sports cluster. The multi-functional training hall is a ‘decorated shed’ that relates visually to the buildings of the first phase in the north, while at the same time taking account of the existing district centre to the south. The outdoor spaces around the new sports centre consist of an arrivals area with an urban character, a landscaped district park, and the large lawns of the sports pitches. With its public pathways the new sports park has an additional value for the neighbouring residential districts as a place to spend leisure time.

Fotografia © Roger Frei
Fotografia © Roger Frei
Fotografia © Roger Frei
Fotografia © Roger Frei
Fotografia © Roger Frei
Fotografia © Roger Frei
Fotografia © Roger Frei
Fotografia © Roger Frei
Siteplan
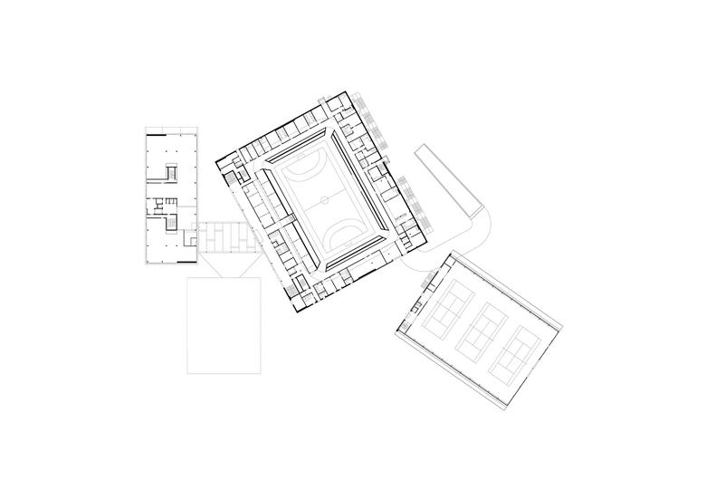
Ground floor
First floor
Sections
Any
2018
Estat del projecte
Construït
Client
WIN4 AG - Winterthur
Type of commission
Competition 1st prize, commission follow-up project
Commission
2015
Planning phase
2015–2018
Construction phase
2016–2018
Space program
Sports arena. Training hall. Changing rooms. Magazine. Underground car park. Basic construction for tenant improvements
Size
21,900 m2 GF (Ball sports arena: 13,600 m2, Campus building: 6,100 m2, Multifunctional training hall: 2,200 m2)

Altres projectes per EM2N 

Cinémathèque suisse
Penthaz, Switzerland
New Housing on Briesestraße
Berlin, Germany
Hardbrücke Railway Station Upgrading
Zurich, Switzerland
Hotel City Garden
Zug, Switzerland
Housing Im Forster
Zurich, Switzerland