Seerestaurant Uster
Ein Pavillon als öffentlicher Ort
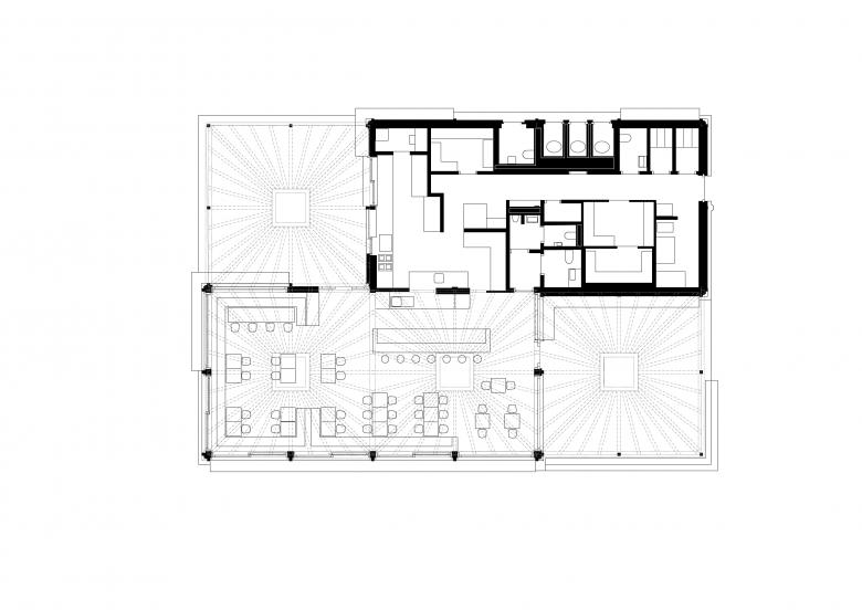
Der eingeschossige Pavillonbau mit seinen sechs markanten Dächern liegt direkt an der Schifflände am Greifensee in Uster. Mit seinen umlaufenden auskragenden Dachflächen orientiert sich das Gebäude gleichermassen zum See wie zur nordseitigen Bushaltestelle und fungiert als verbindender Ort zwischen Landschaft, Infrastruktur und öffentlichem Leben.
Das Volumen ist in sechs gleich grosse quadratische Einheiten mit jeweils separaten Dächern gegliedert. Die Dachkonstruktionen mit Oblichtern bleiben als Zelttragwerk in der Mitte frei und übernehmen unterschiedliche Funktionen. Im Restaurant prägen zwei Dächer das Raumgefühl, während im Aussenraum einzelne Dachmodule gezielt Witterungsschutz bieten. Über der Küche wird der Dachraum für haustechnischen Anlagen genutzt.
Das grosszügig verlaste Restaurant bietet freie Ausblicke auf die Uferlandschaft und den See. Die beiden gedeckten Aussenräume, als eigene Dachformen ausgebildet, schützen die Gäste am See vor Sonne und beim Kiosk vor Regen. Entlang der Fassade unter den offenen Dachflächen sind Sitzbänke angeordnet, wie man sie von Tramhaltestellen in der Stadt kennt. Sie laden Spaziergängerinnen und Spaziergänger zu einem kurzen Aufenthalt ein und machen den Pavillon zu einem öffentlichen Treffpunkt.
Das Seerestaurant am südlichen Rand von Uster schafft einen identitätsstiftenden Ort im Naherholungsgebiet: offen, zugänglich und fest im Alltag der Bevölkerung verankert.
- Any
- 2025
- Estat del projecte
- Construït










