Octavo II
Wettbewerb 1. Preis / Best Architects 23 Award – Um die Jahrtausendwende entstand in Zürich mit Neu-Oerlikon ein Stadtteil, der seine industrielle Geschichte zum städtebaulichen Leitbild erhob: Die Grundstruktur mit den grossmassstäblichen Gebäuden und Aussenräumen bleibt erhalten, die Räume werden durch Verfeinerung und eine stimmige Ausgestaltung einer neuen Nutzung zugeführt. In diesem Kontext wird mit dem Umbau eines Bürogebäudes am Lamprechtweg neuer Wohnraum geschaffen.
–
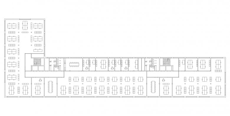
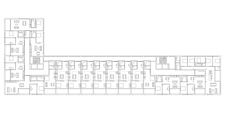
Das mittlere Gebäude einer Gesamtüberbauung aus dem Jahr 2004 ist eine rigide Stützen-Platten-Struktur mit zwei Erschliessungskernen. Die Aufgabe des Wettbewerbs umfasste zum einen die notwendige Sanierung der Fassade und zum anderen die Einpassung von Wohnformen in die dafür eigentlich nicht ausgelegte Grundstruktur.
Die zwei Erschliessungskerne bleiben hierfür, wo und wie sie sind. Sie gliedern den Umbau in drei Teile: Die zwei Köpfe mit den Treppenhäusern, je an einer Strasse gelegen, bilden als Hochpunkte die Adressen aus und verfügen in allen Etagen über die gleichen Geschosswohnungen. Der mittlere Gebäudeteil ist in den Obergeschossen über einen innenliegenden, nordseitigen Laubengang erschlossen. Im Erdgeschoss liegen potenzielle Atelierwohnungen mit direktem Zugang von der Strasse, während vom dritten ins vierte Obergeschoss Maisonettewohnungen das zurückgestaffelte Attikageschoss bilden. Loggias gliedern die Fassade und bieten jeder Wohnung einen geschützten Aussenraum. Die so gewonnene Ausnutzung wird in die Aufstockung entlang der Brown-Boveri-Strasse und die Attikaaufbauten entlang des Lamprechtwegs übertragen.
Eine einfache, aber stimmige Materialisierung bewahrt den Charakter des ehemaligen Bürogebäudes. Glasbausteine und gegossene Böden werden dem Ort und seiner Geschichte gerecht. In der Fassade bleibt das Grundkonzept der unterschiedlichen Behandlung je nach Orientierung zum öffentlichen Raum erhalten. Das Gebäude hebt sich durch eine neue, komplementäre Farbgebung von seinen Nachbarn ab. Die repräsentative, graugrüne Fassade erhält einen sehr groben Modellierputz mit Kammstruktur, der die Fassade durch spielerische horizontale und vertikale Ausrichtungen belebt und wohnlich macht.
https://www.fischer-architekten.ch/de/projekte/octavo-ii-zuerich-oerlikon
- Any
- 2020
- Estat del projecte
- Construït
- Client
- Credit Suisse














