Wohnhochhaus Nordbahnhof
Am Areal des ehemaligen Nordbahnhofs im zweiten Bezirk haben wir unser erstes Wohnhochhaus realisiert. Bis 2025 entsteht hier ein neues Stadtquartier mit insgesamt sechs Wohntürmen als prägenden Eckpfeilern. Ein Teil der ehemaligen Brachfläche bleibt als große, naturbelassene Stadtwildnis – die „freie Mitte“ – erhalten. Mit den Hochhäusern am Rand wird dafür urban in die Höhe verdichtet.
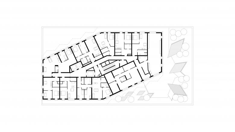
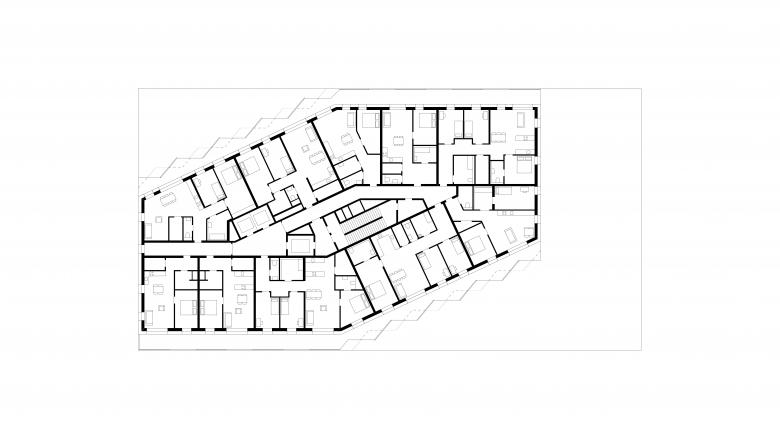
Unser Projekt liegt im nördlichen Teil des Areals, gegenüber des alten Wasserturms und an der neuen Straßenbahn. An diesem markanten Punkt bildet das Hochhaus den Schlussstein in der Entwicklung des neuen Quartiers. Mit 21 Geschoßen kratzt das Haus noch nicht ganz an den Wolken, seinen BewohnerInnen bietet es dennoch einen imposanten Ausblick – rundum auf die Stadt, im Westen auf die freie Mitte. Insgesamt sind hier 200 Wohnungen entstanden.
Die identitätsstiftende Form und Fassade des Hochhauses sehen nicht nur schön aus. Mit der leichten Drehung des Turms und dem Knick zweier Hausseiten öffnen wir diese zu den Grünflächen. Das Gebäude steht dynamisch, elegant und luftig direkt an der Stadtwildnis. Bei der Fassade haben wir uns von Omas Schalstricken inspirieren lassen – unterschiedlich ausgestaltete Balkonfronten ergeben ein Muster wie bei glatten und verkehrten Maschen für Sonnenschutz und Privatsphäre.
- Any
- 2024
- Estat del projecte
- Construït
- Client
- KIBB Immobilien GmbH
- Equip
- Ursula Gau, Björn Haunschmid-Wakolbinger, Dieter Fellner, Katarína Martoňáková, Johannes Tiefenthaler, Milica Simic, Kateřina Kunzová, Zsuzsanna Balla, Judith Mayr, Zsolt Toarniczky, Pavlo Kukurudz
- Statik, Bauphysik, Gebäudetechnik, therm. Gebäudesimulation
- Dr. Roland Mischek ZT GmbH
- Landschaftsplanung
- EGKK Landschaftsarchitektur
- Brandschutzplanung
- DI Erich Röhrer













