BIRS – Logistik- & Servicezentrum
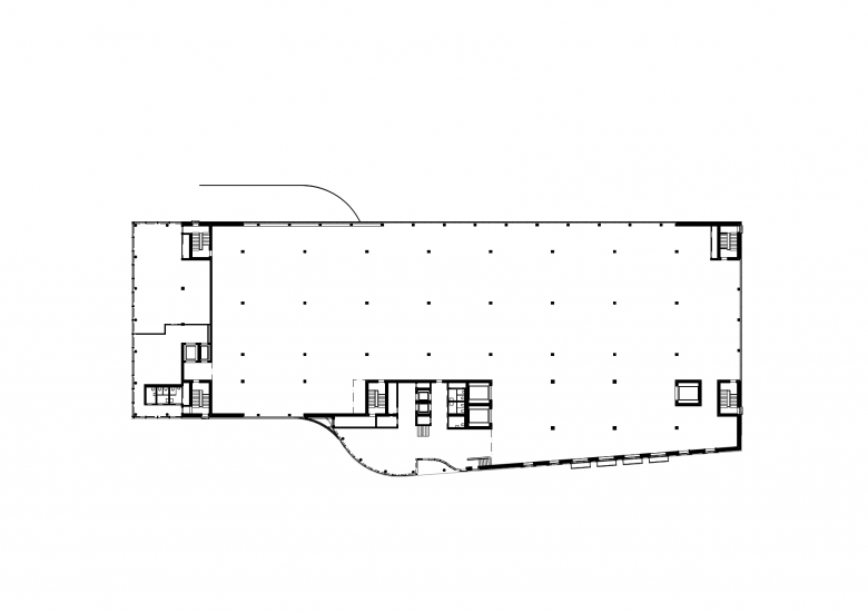
fsp: Das Logistik- und Servicecenter präsentiert sich als siebengeschossiges, polygonales Bauwerk, das entlang der nördlichen und östlichen Grenzen des Grundstücks verläuft, sich im Süden an bestehende Strukturen anschmiegt und im Westen von der Sternenfeldstrasse zurücktritt, um eine hochwertige Pufferzone zu schaffen. Diese Gestaltung optimiert die Nutzung der begrenzten Grundfläche und vermeidet Verkehrsengpässe im Zuge des Rheintunnelprojekts. Die Zufahrt erfolgt über die Hardstrasse, was eine Entlastung der Sternenfeldstrasse vom Schwerlastverkehr ermöglicht.
Die zweischichtige Fassade des Gebäudes unterstreicht seine funktionale Ausrichtung und unterstützt das hochwertige Erscheinungsbild, welches zur zukünftigen Entwicklung des Gebiets beitragen soll. Die Aussenhaut aus perforiertem Blech betont die Einheit des Gebäudevolumens und hebt die Adressbildung hervor.
Im Inneren bietet das Logistikzentrum Flächen für Büro-, Lager- und Gewerbenutzungen sowie eine Einstellhalle für verschiedene Fahrzeugtypen. Der Gebäudekomplex ist so strukturiert, dass er flexible Büro- und Gewerbeflächen bietet, die an verschiedene Mieterbedürfnisse anpassbar sind. Ein Gewerbelokal im Erdgeschoss dient der lokalen Gemeinschaft, und eine Dachterrasse im vierten Stock bietet einen Rückzugsort für die Mitarbeiter.
Ökologisch wird das Gebäude durch eine lokale Fernwärmeversorgung und eine hauseigene Photovoltaikanlage betrieben, die es ermöglichen, den Minergie-P-Standard für nachhaltige Gebäude zu erreichen. Dieses Konzept sorgt für eine ausgezeichnete Energieeffizienz durch die Kombination von Wärmedämmung und der Nutzung erneuerbarer Energiequellen.
- Any
- 2023
- Estat del projecte
- En construcció


