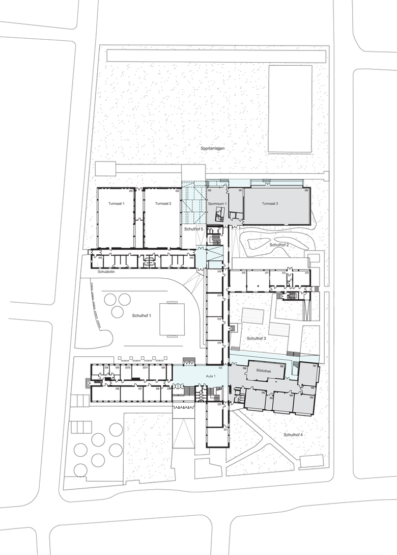
Fünf Höfe für die Zehnergasse
Dem bestehenden Schulbau, erbaut 1962-64, nach Plänen von STEINFELDER/JAKSCH Architekten wurden durch GABU Heindl Architektur zwei neue Bauteile angegliedert, die den offenen Kreuzgrundriss der Schule fortsetzen, jedoch neue Raumformen und Raumgrößen einführen: ein Klassentrakt in Form von Clustern mit flexibler Groß- und Klein-Raum-Nutzung sowie ein neuer Turnsaaltrakt mit klassischer Halle, kleineren Sport-Pausenräumen und einem Außen-Turnsaal in Form einer bekletterbaren Pergola. Durch die zwei Zubauten wurden fünf neue unterschiedlich programmierte und gestaltete Schulhöfe geschaffen.
Eine leichte Drehung des Klassentrakt-Neubaus öffnet den "Lese-Hof" zur Umgebung und zur Sonne. Je Geschoß ordnen sich vier Unterrichtsräume (mit großzügigen Fensternischen) rund um freiere Schulräume ("Schalträume") und Pausennischen zu einem Cluster an. Das Grundrisskonzept mit zuschaltbaren "Modulräumen" zwischen den Unterrichtsräumen erzeugt veränderbare Räume, die Mehrfachnutzungen hinsichtlich neuer pädagogischer Konzepte und zukünftiger Entwicklungen ermöglichen, sowie neue Raumtypen in Richtung Ganztagsschule bietet. Durch das flexible Wand- und Raumsystem lassen sich (im Gegensatz zur starren Schule der 60er Jahre, die aus Gang und Klassenzimmer besteht) Räume verschiedener Größen - von 15m2, 30m2, 65 m2, 80m2 bis 145m2 - bilden.
Jedes Geschoß hat einen großen Außenbereich als erweiterten Lernbereich. Die zentrale Bibliothek im Erdgeschoß wird in den neuen Lesehof erweitert. Im ersten Stock verbinden sich die Lerninseln der Aufenthalts- und Pausenräumen samt Sonnenbalkon mit den Ruhe- und Kommunikationszonen. Die begehbare Dachterrasse im zweiten Stock wird als "Frei-Luft-Raum" für Lehre und Lernen im Freien gestaltet.
Entlang der Fassaden wird das Wechselspiel zwischen Außen und Innen zur gestalterischen Leitidee: Im Norden schieben sich Fensternischen weit nach außen und schaffen Raum im Inneren, im Süden vertieft sich die Fassade und schafft Balkone und überdachte Terrassenbereiche, die ein Lernen im fließenden Übergang zwischen Außen und Innen möglich machen.
'Der neue Sportbereich wurde in Kooperation und Kofinanzierung (!) mit der Landesberufsschule am Nachbargrundstück errichtet und erweitert das räumliche Angebot für den Sport-Unterricht als auch für sportliche Pausengestaltung - für beide Schulen, es entsteht eine Art Schul-Campus.
Die Arbeitsräume für die Lehrenden (ein Bereich, der oft vernachlässigt wird) wurden substanziell räumlich erweitert und als Großraumbüro mit Rückzugszonen und Konferenzmöglichkeiten neu strukturiert.
- Any
- 2013
- Estat del projecte
- Construït









