Kindergartenzentrum Furth
Ein Kindergarten-Campus – ohne Trennung durch Zäune
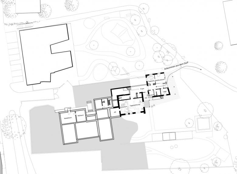
Unser Ziel ist ein gemeinsames Kindergartengelände aller 6 Gruppen, das nicht durch Zäune getrennt ist. Das Projekt konzipiert daher ein zusammenhängendes Ensemble aller Bauteile mit einem gemeinsamen „Kinder-Platz“ für Spiel und Treffpunkt im Zentrum – anstelle einer Parkplatz-Sackgasse. Der Erweiterungsbau setzt der Serie an Kindergruppen-Häusern Richtung Osten ein weiteres Haus hinzu. Um die Trennung der zwei Gärten aufzulösen schlagen wir vor, den Sankt-Wolfgang-Weg umzulegen und ihn zu einem schönen, öffentlichen Spazierweg zu gestalten.
Somit entstehen:
– Ein gemeinsamer Kinder-Platz
– Ein „Kinder-Treppen-Haus“, das die 4 Gruppen mit dem Bewegungsraum und den Personalräumen verbindet.
– Ein zweiter Zugang zur Musikschule, von der Pfarrkirche aus erschließbar, sowie barrierefrei vom Kellergraben.
– Die Möglichkeit die Räume auch außerhalb des Kindergartenbetriebs zu nutzen, falls gewünscht. Die Zufahrt für Einsatzfahrzeuge aber auch für einen barrierefreien Parkplatz ist nach wie vor gegeben.
Der Zubau für die vierte Gruppe des Kindergartens wird in der Typologie des bestehenden Kindergartens als viertes Haus im Osten der Kindergarten-Häuserkette angefügt und ist mit Gruppe I, II und III innenräumlich über einen Verbindungstrakt verbunden, der zugleich als Erschließungstrakt, Treppenhaus und Gartenpavillon konzipiert ist. Ein neues Tagesbetreuungszentrum wird in gering benutzten Nebenräumen des Bestandsgebäudes ausgebaut.
Die Gestaltung des Baukörpers entwickelt in jede Himmelsrichtung eine spezifische Außen- Innenbeziehung: Loggia, Gartenzugang und Sichtverbindung zum Stift Göttweig für die Kindergruppe, überdachte Terrasse und Rundumblick von Pfarrkirche bis zum Stift für Aufenthaltsraum, Multifunktionsraum und Musikschul-Foyer; der Verbindungs-Holzpavillon öffnet sich mit großzügigen Terrassen zum zentralen Kindergartenplatz.
Mehrfachnutzung:
Das Raumpaket der Zusatzräume ist auch abends oder am Wochenende für die Gemeinde nutzbar, indem der Kindergarten abgetrennt werden kann und somit die Räume durch andere Mitglieder der Gemeinde genutzt werden.
- Any
- 2021
- Estat del projecte
- Construït
- Client
- Marktgemeinde Furth bei Göttweig (NÖ)
- Equip
- Planungsteam Wettbewerb: Gabu Heindl; Dorotea Mandic; Lisa Schönböck; Hannah Niemand, Planungsteam Ausführung: Gabu Heindl; Katrin Dielacher; Hannah Niemand; Stana Marjanovic















