Clubhaus Golfclub „Hetzenhof“
Die Anlage Hetzenhof in Lorch ist eine Topadresse für Golfer weit über die Metropolregion Stuttgart hinaus. In knapp drei Monaten Bauzeit wurde die Neugestaltung des Clubhauses umgesetzt.
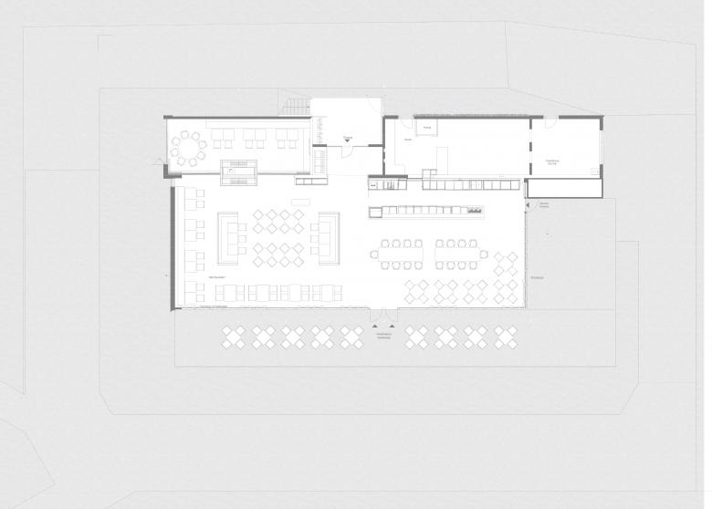
Golfen unter Freunden“ – oberhalb des Remstals lockt der großzügige 27-Loch-Kurs auf dem „Hetzenhof“ jedes Jahr zahlreiche Gäste an. Für sie und die rund 1.100 Clubmitglieder waren die Räume des seit 1995 baulich kaum veränderten Clubhauses neu zu gestalten. Zu Beginn der Saison Mitte März 2016 mussten die Räume neu möbliert und nutzbar sein.
Bei einer Informationsveranstaltung Ende Oktober 2015 kamen von Mitgliederseite zahlreiche Anregungen, die auch in die Planungen eingingen. Das auf dieser Basis erarbeitete Konzept sieht eine Verlegung der Bar vor. Die bisherige Raumteilung durch die Theke fällt weg, wodurch eine neue Offenheit entsteht. Besondere bauliche Maßnahmen zur Verbesserung der Raumakustik wie abgehängte Decken im Barbereich isolieren Nebengeräusche. Der neue Kamin ist besonders in der kühleren Jahreszeit ein Magnet zum Verweilen.
Zusätzliche Fenster und ein neues Beleuchtungskonzept definieren durch unterschiedliche Lichtstärken einzelne Bereiche. Im Hauptraum entlang der Glasfassade präsentieren sich für Anlass und Gruppengröße passende Sitzqualitäten und Möbel. Sitzbänke mit hoher Bespannung an der Rückwand des Clubraums bieten besonderen Komfort.
Bei der Möblierung und Materialwahl waren Natürlichkeit und regionale Bezugsquellen entscheidend. Zu den verwendeten Materialien gehören Eichenholz als Bodenbelag sowie Leder für die Sitzpolster. Bei Farben und Stoffen werden Bezüge zum ländlichen Ambiente durch warme und gedeckte Töne hergestellt. Quadratmuster der Stoffbezüge zitieren Schottland als Wiege des modernen Golfsports.
Planverfasser: Gaus & Knödler Architekten PartGmbB (ab 01.09.2019: Gaus Architekten)
- Any
- 2016
- Estat del projecte
- Construït











