Neue Bahnstadt Opladen
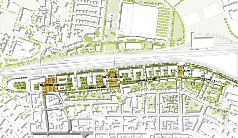
Mit der geplanten Bahnstadt West entsteht ein neues Stadtquartier, dass eine Erweiterung des gründerzeitlich geprägten Opladener Stadtzentrums darstellt. Das Quartier ist sowohl durch Wohnbebauung als auch durch Dienstleistung, Handel und Gewerbe gekennzeichnet. Im Freiraum sollen neue öffentliche Bereiche mit eigener Identität und hoher Aufenthaltsqualität entstehen. Hierbei ist die Verknüpfung zum Stadtquartier (nbso) auf der Ostseite der Gleistrasse ebenso von Bedeutung wie die Verflechtung mit der Innenstadt Opladens.
Leitidee ist die Ausbildung eines durchgehenden „Grünen Bandes“, welches das gesamte Quartier durchzieht. Inspiriert durch die in Nord-Süd-Richtung verlaufenden ehemaligen Bahntrassen spannt sich entlang der „Gleislinien“ ein durch signifikante Baumreihungen, Platzräume, Stadtmobiliare, Spielbänder sowie lineare topografische Elemente geprägtes Freiraumband auf. Im Bereich der städtebaulich wichtigen Verknüpfungsräume Bahnhofsvorplatz, Brückenpark und Vorplatz Wilhelmstraße verzahnt sich das Band in der Ost-West-Richtung. Darüber hinaus gibt es viele weitere Verbindungen zum baulichen Bestand und zu den neuen Höfen.
- Habitatge plurifamiliar
- Bloc d'habitatges
- Uso Mixt
- Parcs + Espais Oberts
- Arquitectura del Paisatge
- Desenvolupaments Urbans
- Estat del projecte
- En construcció
- Client
- Neue Bahnstadt Opladen GmbH


