Restoration of the Podere Larignano, Tuscany
At its idyllic location surrounded by broad fields, the country house presents itself in a regal manner with a crowning rooftop terrace. This character is also continued in the interior – with a concise expression that absolutely had to be preserved during the conversion measures.
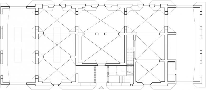
Thus, the interventions were reduced and isolated, although in fact these intensify the special atmosphere of the architecture: gentle concrete sections contrast with the coarse feel of the dry-stone wall, while orthogonal forms add precise contrary accentuation to the old walls with their often rough textures. The newly created exposed-concrete structure in the peripheral space provides additional seating. At the same time, this produces striking and highly attractive linear framing. The portrait-format windows with light brown wooden frames are also contributing factors.
Everywhere, the modern elements are harmoniously integrated into the existing range of colours and materials. However, some of them reflect the duality of their design, with recurring dichotomies of smooth and uneven, and angular and round. The fluent interior spatial concept with enfilades picks up on the picturesque expanse of the Tuscan countryside. A pool and various garden furniture elements continue the concrete topography in the outdoor space.
- Any
- 2020-2024
- Estat del projecte
- En construcció





