Mahtabi House
Mahtabi House, by the Iranian architect, Habibeh Madjdabadi, revives the local traditions, while in clear contrast with the surrounding buildings.
Mahtabi, literally, “lit by the moon” in Persian, is the name of the traditional Iranian terraces, where the people use to sleep at night while enjoying the summertime starry nights.
The plot is located outside the old town of Golpayegan, a city in the central part of Iran with a mountainous and variable climate: warm in summer and cold in winter. The barren neighboring urban context is made of irrelevant newly built box-shaped residential buildings with poor-quality grey stone facades.
The architect says, “In the neighborhood, there was nothing relevant to attract my attention, but the traditional brick houses of the old town, with their generous terraces (mahtabi) were quite inspiring”. Her work tries to repropose, in a contemporary way, the ancient concept of the Iranian terraces. The house seems to be wrapped in a spiral-shaped rising terrace, which provides simultaneous protection against the sun's rays, space for outdoor activities, and dynamic views over the building and the landscape.
The house borders on three sides with the pre-existing properties. The southern side of the building, facing the, is the only place where the architect could realize her concept of multiple terraces, connected with ramps and stairs, creating a kind of promenade architecturale.
the house is interconnected with the exterior porch spaces, forming a continuity of mutual flow of the terrace into the indoor space, and the indoor spaces into the terrace, boosted by a green roof with Plants suited to the climate, a fireplace for the cold winter and a wooden shade for the hot summers.
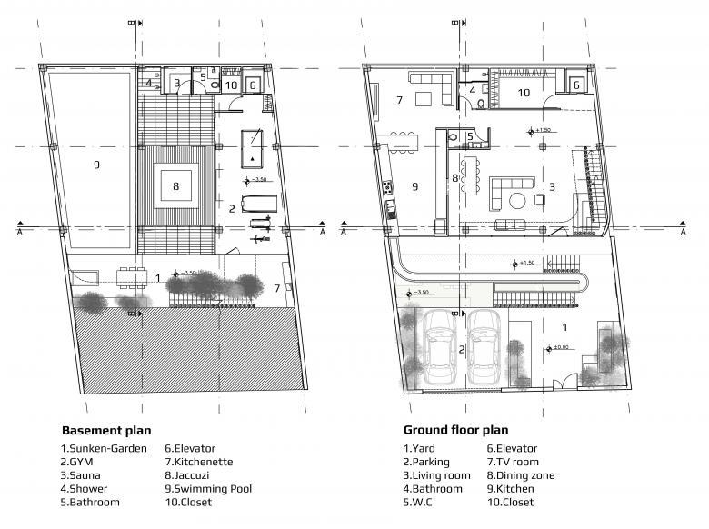
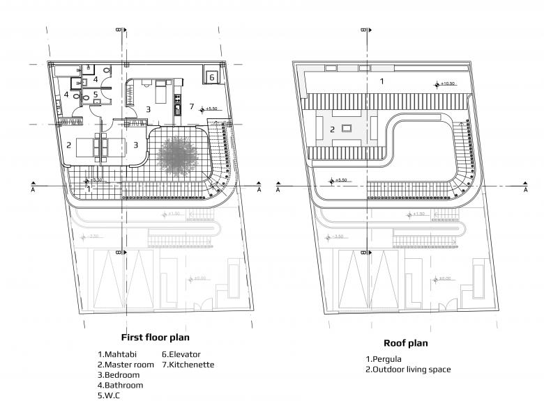
The house includes a ground floor, first floor, terraces, basement, and roof garden. The living room and the kitchen are located on the ground floor next to the entrance terrace and the bedrooms are on the first floor and next to the upper terrace facing the yard.
It is mentionable that In Iran because of sex segregation in public spaces such as pools, gyms, spas, and ballrooms, Families cannot enjoy swimming, sports, and dancing together. Therefore, those “public facilities” should preferably be comprised of houses. Accordingly, here the basement has been dedicated to a swimming pool and several recreational and sports accommodations.
Project info
Project title: Mahtabi House
Architecture: Habibeh Madjdabadi Studio
Graphic & presentation: Hossein Bashari, Shirin Afshar, Tarranom Maveddat
Text by: Kamran Afshar Naderi
Client: Meisam Mahdavi
Location: Golpaygan, Iran
- Any
- 2022
- Estat del projecte
- En construcció
- Client
- Meisam Mahdavi











