Folio Apartmenthäuser 2016
Wohnhäuser in Klagenfurt.
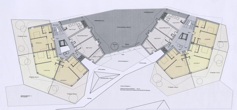
Vor Ort gefundene Blätter eines Strauches, die ihre Zacken dem Sonnenlicht entgegenstrecken zu schienen, standen als eine Inspiration des Projektes. Die lokale Bauordnung schreibt bei einer Seitenlänge von mehr als 18 m , die parallel zur Grundstücksgrenze liegt, die gesamte Höhe als Grenzabstand vor. Geht eine Bebauungskante größer als 45 Grad von einer naheliegenden Grundstücksgrenze weg, zählt sie nicht zur Länge des Gebäudes. So waren es dann auch pragmatische Parameter, die das Fünfeck in vielerlei Hinsicht als vorteilhaft auszeichneten. Es ist mehr Fläche zur Sonne im Süden und der dortigen Bergsicht exponiert, als dies beim Kubus der Fall wäre. Zudem ist die Fassadenfläche bei gleicher Grundfläche eines Fünfecks, auch noch merklich geringer . Zwischen dem zentralen Kern und der Außenwand, ist ein stützenfreier Grundriss möglich, der eine beliebige Wohnungsteilung mit leichten Trennwänden ermöglicht .Raumhohe Verglasungen mit Schiebetüren und mit Balkonen vor allen Räumen generieren ein freies Wohngefühl, der Ausblick ist frei auf die Bergkulisse und den verschieden, am Grundstück angelegten, typologischen Gärten. Der Blick wird auch ist nicht blockiert durch eine parallele Nachbarfassade, sondern streift tangential an den Gebäuden vorbei.
- Estat del projecte
- Disseny



