Neue Heilpädagogische Schule Bern
Neue Heilpädagogische Schule Bern
in Zusammenarbeit mit Haag Landschaftsarchitekten, Visualisierung David Klemmer
2. Platz, offener Projektwettbewerb, 2018
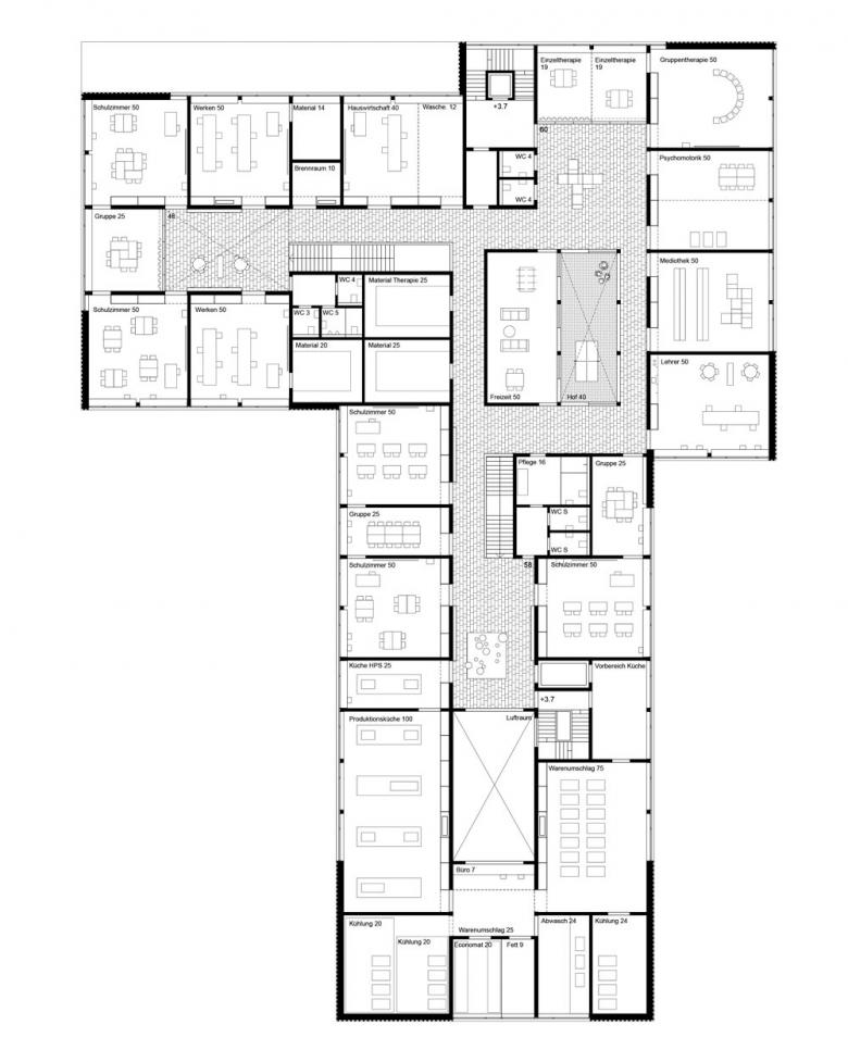
Schule mit 18 Klassenzimmer, Turnhalle und Quartierküche
Die Nachbarschaft der neuen Heilpädagogischen Schule ist geprägt von Arealen und Siedlungen mit einem starken inneren Bezug. Die Regelschule nördlich der Parzelle ist ein rechtwinklig aufgebauter und gewachsener Campus mit einem internen Erschliessungsweg für Fussgänger und Fahrräder. Die neue Heilpädagogische Schule knüpft an dieses System an und schafft in der Verlängerung der Schulhauserschliessung eine Fussgängerverbindung auf das neue Schulareal, den Allwetterplatz, den Pausenplatz und die Gärten. Entlang der Statthalterstrasse verläuft die Vorzone der Schule, geprägt von den alten, hohen Bäumen und mit einer Durchlässigkeit, die eine klare Adressierung erlaubt. Das dreischenklige Schulhaus versteht sich als eine Erweiterung der bestehenden Schulanlage und ist gleich ausgerichtet. Mit der Positionierung im Nordosten der Parzelle entsteht an der Strassenkreuzung ein attraktiver neuer Platz und es bleibt eine grosse, zusammenhängende Fläche frei für den Schulgarten und die Spielwiese in der Tiefe der Parzelle.
Analog zur Hierarchie der Aussenräume ist das Erdgeschoss organisiert, Innen und Aussen sind entsprechend den Nutzungen eng miteinander verknüpft.
Die Unterrichts- und Therapieräume gruppieren sich zu drei Clustern mit unterschiedlichen räumlichen Situationen. Drei unterschiedliche Tageslichtsituationen verleihen den Bereichen eine Einzigartigkeit und schaffen neben räumlicher Vielfalt auch Orientierung. DIe Vorbereiche bieten Spiel- und Arbeitsmöglichkeiten in einem geschützten und räumlich gefassten Bereich.
- Any
- 2018
- Estat del projecte
- Disseny








