Mensa Kirschgarten
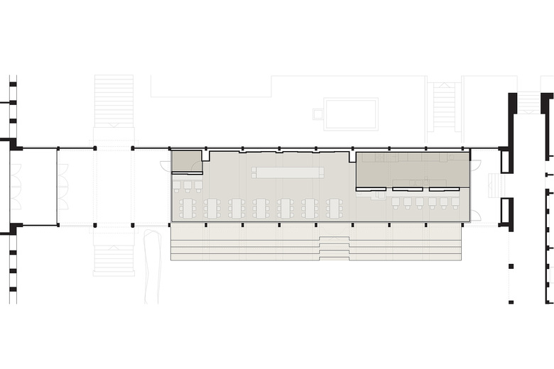
The Kirschgarten project integrates a cafeteria into the existing open lobby of an important school building located in the city center of Basel. Ribbons made of wood are offset from the existing floor, wall and ceiling. These ribbons reach out between the concrete structure toward the courtyard, creating a solar screen and a terrace where people can sit and eat. This gesture links the interior space to the outside and enables direct access from that courtyard.
On the interior the wood facing traces the existing concrete structure. A glass façade, which appears almost invisible when viewed from the outside, works as a thermal barrier. This makes it possible to maintain the previous outer appearance of the building with its slim columns.
As a landmark building designed by the famous Swiss architect Hans Bernoulli, every intervention must be reversible. The project reacts to that requirement; the construction of the interior wood facing maintains a minimal number of connections to the original structure.
The color concept with its different shades of grey was developed in collaboration with the Swiss artist Gido Wiederkehr.
Program:
Restaurant/Cafeteria
Design Phase and Construction:
2008
Team:
HERLACH HARTMANN FROMMENWILER
with Yuko Hirase, Tonja Kersting, Rahel Reichenstein, Laurenz Reinitzer
Artist:
Gido Wiederkehr
Client:
Hochbau- und Planungsamt, Basel-Stadt
Awards:
Best architects 09
Auszeichnung guter Bauten in gold 2009, Basel-Stadt/Basel-Land
- Any
- 2007
- Estat del projecte
- Construït








