Wilhelmsburger Ruder-Club
Im Zuge der städtebaulichen Entwicklung des Neunen Elbinselquartiers in Wilhelmsburg entsteht das neue Vereinshaus des Wilhelmsburger Ruderclubs (WRC). Als erster Neubau im Quartier wird dem Gebäude eine wichtige Pionier Rolle zu Teil. Durch seine Lage am Assmannkanal übernimmt der Baukörper zwei wichtige städtebauliche Aufgaben im entstehenden städtebaulichen Kontext. Zum einen formt er mit dem neu entstehenden Inselcampus ein bauliches Ensemble und zum andern bildet er von Norden herkommend den Auftakt der Grünachse am Assmannkanal.
Das einfache und klare Volumen orientiert sich mit seinen Funktionen und Öffnungen zur Uferpromenade und zum Assmannkanal. Gegenüber der Grünachse setzt das Gebäude mit seinem einfachen, aber ikonischen Profil ein wiedererkennbares Zeichen. Ziel ist es, ein atmendes Gebäude zu schaffen, welches mit seinem Umfeld interagiert und den Rudersport in Wilhelmsburg erlebbar macht.
Der Neubau versteht sich als Teil der Grünachse des neuen Elbinselquartiers. Mit der geplanten Holzfassade nimmt das Gebäude Bezug auf die Tradition alter holzverschalter Bootshäuser.
Die Hauptfassade des Clubhauses zum Assmannkanal verfügt über eine raumhohe Verglasung mit Öffnungselementen, um einen direkten Zugang zur davorliegenden, überdachten Gemeinschaftsterrasse zu ermöglichen. Öffenbare Faltelementen aus Holz, welche optisch mit den Falttoren der Bootshalle korrespondieren, binden die beiden Funktionseinheiten gestalterisch zusammen.
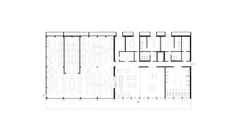
Gemäss dem Motto «alle unter einem Dach» werden die beiden primären Nutzungseinheiten, bestehend aus Club- und Bootshalle in einem klar strukturierten Baukörper untergebracht und bilden so, trotz ihrer Unterschiedlichkeit, eine bauliche Einheit.
Um in dem knappen Kostenrahmen zu bleiben wurde von Beginn an darauf Wert gelegt, eine möglichst einfache Geometrie zu wählen, die gleichzeitig dem gestalterischen Anspruch und der prominenten Lage in der Grünachse des neuen Elbinselquartiers gerecht wird. Ziel ist es ein Gebäude für den Wilhelmsburger Ruderclub zu schaffen, welches optimal auf die Nutzerwünsche ausgelegt ist und somit dem Rudersport und dem Vereinsleben in Wilhelmsburg ein neues Zuhause an einem altbekannten Ort bietet. Die komplett öffenbare Hauptfassade schafft eine schwellenlose Verbindung zwischen Clubhaus, Bootshalle und Aussenraum, soll interessierte Anwohner und Passanten mit dem Rudersport in Kontakt bringen und das Gebäude auch über weitere mögliche Nutzungen (Yogaklassen, Quartiersanlässe, u.a.) in das Quartierleben einschliessen. Das barrierefrei konzipierte Gebäude teilt sich in zwei Hauptnutzungen, der ungedämmten Bootshalle mit einer eingestellten Werkstatt und dem gedämmten Volumen des Clubhauses mit Gemeinschaftsräumen, einem Kraftraum, den Umkleiden, einer Küche, Lagerräumen, einem Haustechnikraum und einem Multifunktionsraum. Um das Gebäude möglichst einfach zu halten, wurde eine Schnittfigur entwickelt, welche durchgängig auf einem Tragwerkssystem basiert und gleichzeitig den Anforderungen beider Nutzungen gerecht wird. Unter dem auskragenden Vordach wird eine geschützte Vorzone (Allwetterzone) geschaffen, die zum einen auch bei schlechtem Wetter eine Nutzung der gesamten Vorzone ermöglicht und zum anderen den verglasten Anteil der Hauptfassade natürlich verschattet. Das Oberlichtband bringt zusätzlich Licht in die Tiefe des Baukörpers und ermöglicht eine natürliche Belüftung bzw. Querlüftung. Um die zur Schule hin orientierte Fassade des Clubhauses zu bespielen, wurden hier zusätzliche Lagerflächen für Boote der Berufsschule und das dazugehörige Equipment geschaffen. Die schrankähnlichen Lagerflächen verfügen in Analogie zur Hauptfassade über faltbare Türen und schaffen so ein kohärentes Erscheinungsbild.
- Any
- 2024
- Estat del projecte
- Disseny
- Client
- Freie Hansestadt Hamburg
- Bauingenieur
- Posse & Götze
- HLKS
- ProKonPlan GmbH







