LocHal Public Library

Tilburg, Netherlands
The new structural systems were woven into the existing systems and amplify the historic spatial conditions
Fotografia © Stijn Bollaert

Name of work in English
LocHal Public Library

Name of work in original language
LocHal

Placement
Shortlisted

Prize year
2022

Location
Tilburg, The Netherlands

Year completed
2018 (Year began 2017)

Authors
Ingrid van der Heijden (1968 The Netherlands); Jan Lebbink (1981 The Netherlands); Gert Kwekkeboom (1984 The Netherlands); Rick ten Doeschate (1984 The Netherlands); Job Roos (1953 The Netherlands); Olivier Graeven (1973 Belgium); Petra Blaisse (1955 The Netherlands); Aura Luz Melis (1977 The Netherlands)

Collaborators
Technical architect: VDNDP Interiors: Mecanoo Landscape architect: Donkergroen Project management: Steven van Dijck Bouwmanagers & Adviseurs Structural design and engineering, installation technology, sustainability, lighting, fire safety, acoustic design: Arup buidlgin physics, acoustics, fire safety for contractor: abtWassenaar structural engineering for contractor: F. Wiggers Ingenieursbureau Construction company: Binx Smartility commercial management contractor: SOM Design Glass Concert Hall: Zaanen Spanjers Architecten & Octatube production and installation textile screens: Textbile Lab - Tilburg Textile Museum, Seilemaaker, Theatex BV, Gerriets Gmbh & Levtec
Program
Mixed use - Cultural & Social
Labels
Compact, Architecture, Civic Centre, Culture Centre, Exhibition, Heritage, Library, Community

Total area
5758 m2

Usable floor area
11200 m2

Cost
1848 €/m2

Client
City of Tilburg

Client Type
public

Map
LatLng: (51.5614432, 5.0858915)

The LocHal is the new public library of the City of Tilburg. A former locomotive hangar has been transformed into a public meeting place. It revives a former industrial area on ‘the wrong side of the tracks’ into a vibrant mixed-use district. The LocHal exemplifies how a city’s industrial history, can form the roots for a new symbol of public life. The LocHal redefines the library typology. While preserving ‘book consumer’ facilities, it also stimulates interaction and the creation of new knowledge. The building forms a covered public space, housing amenities shared by the library, arts organizations, and co-working facilities. In addition to areas for public events, the building has a number of ‘labs’ where visitors can learn new skills. Large open spaces match the monumental value of the hall and the idea of an 'open' library. From the entrance hall, the landscape of stairs leads visitors up to the peripheral galleries where you can retreat into one of the quieter reading areas. Higher up, the filtered light and the refined details of the structure create a more ephemeral atmosphere. A large public balcony offers panoramic views over the city. The LocHal catalyzes the redevelopment of the Railway Area. It transforms a ‘forbidden city’ that for decades divided the city in two, into an attractive destination that connects the historic center, with the North of Tilburg. The architecture is a reinterpretation of the original building (1932). The main structure determines the rhythm and language of the new architecture. Perhaps the most conspicuous feature of the building is its sheer size. With a height of fifteen meters, it is both imposing and inviting. The entrance hall forms a covered square with large reading tables (doubling as podia), an exhibition area and a coffee kiosk. The space folds up into a landscape of stairs that can be used as event space for over a thousand spectators. The spaciousness is strengthened by diagonal views across the interior, enabled by smart engineering. Climate zones preserves the openness of the building; heating visitors in key contact zones instead of entire spaces. Six grand, movable textile screens enable flexible separation of areas. This made it possible to preserve the LocHal as one large space, rather than inserting closed volumes or replacing it altogether. The library capitalizes the carefully preserved existing structure, minimizing new structural elements. Columns, floors, parapets and the textile screens form the ‘grand gestures’ that emphasize the perpendicular axes of the historical industrial processes in the building. The imperfections of the existing materials contribute to the productive and public atmosphere. New additions are constructed in pure materials such as black steel, concrete, glass, and wood, applied over large surfaces. Six textile screens that extend to ceiling height accentuate the scale of the space while improving the acoustics. The screens, with a surface area of 4.125 m2, can be repositioned in numerous configurations. To separate the co-working area from the higher library floors, or to create a small auditorium for instance. The materials reveal their characteristic textures when viewed at close hand. The intricate window frames and translucent textile screens play with the daylight, creating refined shadow patterns. After dark, the building is turned ‘inside out’, with the interior becoming the main source of light: an inviting beacon in the city center.

The former locomotive shed has been extended with one bay, to offer a generous entrance to the public
Fotografia © Stijn Bollaert
The moveable curtains add a soft tone to the industrial building, and filter the incoming light.
Fotografia © Stijn Bollaert
LocHal is an emblem of Civic pride, transforming the city’s historic icon into a meeting and learning hub for the future.
Fotografia © Stijn Bollaert
A generous landscape of stairs, platforms and open theatre settings invites people to explore the building upwards.
Fotografia © Stijn Bollaert
Site Plan
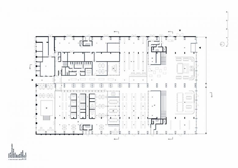
Ground floor plan
Second floor plan
Longitudinal section
Cross section
the four layers of intervention
Conceptual drawing of the open landscape of plaza’s, stairs and auditoria
Detail new platforms and exisiting facades
Any
2018
Estat del projecte
Construït