Haus FL
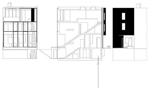
An der Bernauer Straße ist die Teilung von Berlin auch fast 20 Jahre nach dem Fall der Berliner Mauer noch deutlich erkennbar. Die vorhandenen Gebäude sind Zeitzeugen verschiedener Welten, der Westbezirk Wedding steht mit einer modernen Zeilenbebauung aus den 50er bis 70er Jahren den gründerzeitlich geprägten Gebäuden des ehemaligen Ostbezirks Mitte gegenüber. Eine Insel bestehend aus 16 Stadthäusern, in einer an mittelalterliche Verhältnisse erinnernden Dichte gebaut, versucht diesen Ort des ehemaligen Todesstreifens neu zu definieren. Das Haus FL interpretiert die Idee des Einraumhauses neu. Die alle Orte verbindende Promenade verläuft von der Halle des Erdgeschosses über eine einläufige Treppe und endet auf dem Dach des Hauses mit dem Blick über Berlin. Der Wechsel von offenen und introvertierten Orten ist Abbild des familiären Lebens der Nutzer.
Aufgabe
Neubau eines Stadthauses in Berlin-Mitte auf minimiertem Grundstück
Bauherr
privat
Architektenleistungen
LP 1-9
Auszeichnungen
Häuser Award 2010
1. Preis; Gestaltungspreis der Wüstenrotstiftung 2010
engere Wahl; Bauweltpreis 2009, ausgewählte Arbeit
- Any
- 2008
- Estat del projecte
- Construït





