Mumokuteki Concept Bookstore by LUO studio
Mumokuteki Concept Bookstore by LUO studio
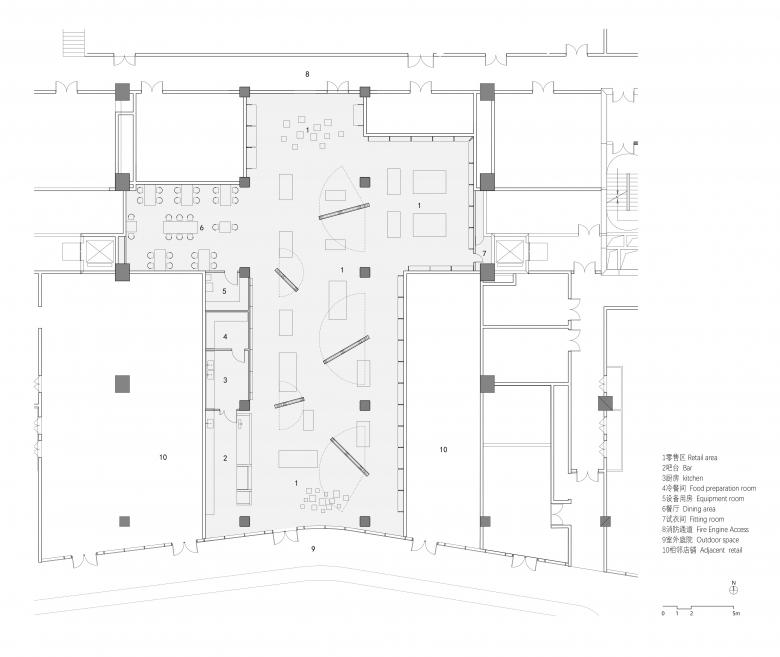
Project information
Project name :Mumokuteki Concept Bookstore by LUO studio
Location: 104-03, F1, Building 5, No.18 Yongrun Road, Haidian District, Beijing
Client: Juran Bookstore
Area: 479.1㎡
Start time: October 2020
Completion time: April 2021
Design firm: LUO studio (www.luostudio.cn)
Design team: Luo Yujie, Wang Beilei, Wang Zhen, Lu Zhuojian, Huang Shangwan
Construction firm: Shinewood Building Technology (Beijing) Co., Ltd.
LUO studio recently conceived a distinctive bookstore in the underground space of a shopping mall in Beijing.
Due to different area requirements of various tenants that could occupy the space in the future, the space of the large commercial building was divided unevenly, and the walls and columns were separated and arranged disorderly. The mall hoped to maximize the potential of the underground space, where equipment rooms were set. The equipment space was dominated by intricately-mounted and dense pipelines, which posed a great challenge to the design.
For spatial renovation, bringing in a conventional suspended ceiling to conceal the pipelines would lead to a more cramped, oppressive space. Therefore, the design started from the idea of presenting the authenticity of the space without adding wrapping elements to original spatial structures.
I. Reveal the authenticity of the original space
Instead of enveloping the cluttered ceiling pipes or finishing the columns or walls, LUO studio intended to showcase the original state of the space, as they believed that the existing space was an inevitable result of urban space production and the walls and columns were neutral. The team worked to restore the original state of the columns and walls, with a view to unveiling the pure, authentic spatial textures.
The white coating of walls and columns was removed, and the irregular edges and corners were fully polished, thereby revealing the aggregate's textures in the concrete columns. The original ceiling structures were retained and endowed with a gray tone, which is slightly darker than the walls and harmonizes with the entire space.
Through those approaches, the basic structural components were reshaped, and the authenticity of the space was revealed.
II. Create “structural installations”
Based on the client's actual demands, shelves needed to be set against the walls and to be capable of adapting to changes. Since the walls were built with non-bearing hollow blocks, the specific width and height of the shelves should be pondered carefully to concentrate the stress of the shelves on the ground, with the walls providing additional support. Based on those considerations, LUO studio decided to bring in and place metal shelves against the walls. The shelves feature a broad and long base, and the walls were endowed with many anchor points to offer more support.
The metal shelves are structural furniture, which also functions as partitions that help increase variability and flexibility of the space. Each metal shelf is an embedded "structural installation".
III. Insert rotating screen walls under the beams
"Mumokuteki Concept Bookstore" is a new idea proposed by the client Juran Bookstore after its years of operation. It conveys a free future lifestyle for urban people, and puts forward the possibility of creating a flexible and varying bookstore space that integrates with other various functions such as exhibition.
Rotating screen walls were inserted under the beams as secondary structural components. As all the rotating walls are set vertical and perpendicular to the entrance interface, the whole space becomes open and transparent. However, when they are parallel to the entrance, the space is divided into multiple continuous yet independent parts, which enrich the sense of layering and depth of the space. Those screen walls can rotate and be fixed freely, thus helping obtain a flexible and changeable space.
The rotating wall's framework is riveted with angle steel profiles, and is enveloped by transparent or translucent materials. Transparent rotating screen walls are deployed at the entrance and the transition area leading to the rear zone for the continuity of the space, while translucent walls are set in other areas to enrich the space.
Holes are carved out on both sides of the screen walls based on module specifications, for allowing wooden sticks to pass through. In addition, different numbers of metal plates are flexibly set on the wooden bars at different heights, so as to meet the needs of hanging and placing books and cultural, creative products.
The overall interior design of the project is not conventional, as all strategies taken are aimed to return the architectural space to its original state. Through the insertion of structural furniture and other various spatial creation methods, the design restored the original appearance and authenticity of the space.
- Any
- 2020
- Estat del projecte
- Construït








































