ESTUDI MAIO
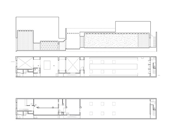
El projecte consisteix en la reforma d'un habitatge i un estudi annex, consistent en una petita nau preexistent que antigament allotjava uns safarejos, i que consistia en un espai continu de secció variable d'uns 40 metres de longitud en el qual amb prou feines entrava llum.
Per millorar la il•luminació interior, la proposta se centra en l'obertura d'un pati amb les seves respectives finestres, concebut com una habitació més.
Aquesta habitació exterior divideix els 40 metres de longitud en dues zones. La zona frontal queda oberta al carrer, mentre que la posterior acull una taula de 12,5 metres de longitud i es destina a espai de treball, on els usuaris es distribueixen i comparteixen dinàmiques de treball.
Al pati s'ha cuidat especialment el gruix de les tres noves grans finestres, recobrint brancals, llindes i ampits de fusta, i convertint-les, d'aquesta manera, en llocs d'estada que permeten gaudir d'aquest espai obert i fent alhora dels llindars espais intermedis útils.
La resta dels espais existents es respecten, afegint algunes comparticions que reforcen la relació subtil entre zones habitables mitjançant passos generosos, generant d'aquesta manera una seqüència visual d'espais concatenats entre si però alhora discontinus i amb entitat pròpia.
- Any
- 2012
- Estat del projecte
- Construït








