École et logements
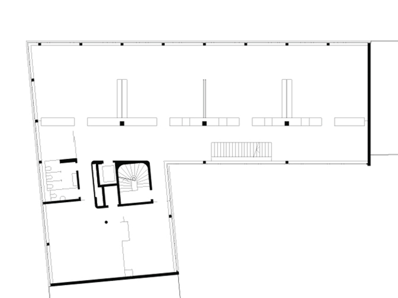
Cet immeuble d’angle situé à l’entrée nord de Genève résout la problématique d’une superposition de deux programmes très différents: une école privée de neuf classes
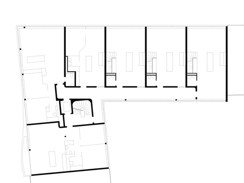
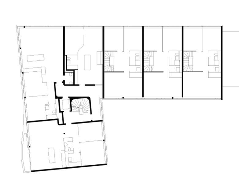
sur les trois premiers niveaux et des logements collectifs sur les quatre derniers. Une typologie par coursive, sur la cour, est privilégiée, réduisant la distribution verticale à une unique cage d’escalier. Aux couloirs de l’école se superposent les accès aux logements dont la majeure partie est conçue sous forme de duplex.
L’entrée de l’école privée s’effectue par un préau couvert, avec un prolongement dans la cour. Le rez-de-chaussée accueille la réception et une grande salle polyvalente. Aux étages, les classes sont orientées sur les deux rues et sont reliées entre elles par des parois coulissantes. La pédagogie ouverte favorise une forme de transparence entre classes et couloirs. Les espaces scolaires sont agrémentés par un projet de couleur qui leur confère une touche «ludique» dans le déroulement des parcours.
Les appartements en duplex sont de type traditionnel au troisième étage, à savoir bénéficiant des espaces de jour au niveau de l’accès. Au cinquième étage ils sont inversés, avec la partie nuit adossée à la coursive, permettant de bénéficier de la terrasse d’attique pour les pièces de jour. Les autres appartements sont des simplex qui s’organisent de manière à occuper tout l’espace à disposition, tout en mettant en valeur les orientations et les vues sur le paysage urbain. Les espaces de distribution sont teintés avec le même jaune que l’école, offrant une unité de lecture de la façade sur cour.
La mise en place de ce double programme a nécessité le recours à une solution statique permettant de faire passer les efforts d’une dimension adaptée au logement, à savoir une trame de six mètres quarante, à celle requise pour des classes, prévue sur huit mètres. La solution structurelle s’est imposée sous la forme d’une «poutre-voile» d’une hauteur d’un étage. L’ensemble des façades est traité sur le thème de perforation métallique devant une peau de couleur rouge brique, teinte déjà présente dans l’îlot urbain. Sur la rue, un bardage en verre sérigraphié avec un motif de tôle perforée vient doubler la composition de façade utilisée sur la cour.
- Any
- 2006
- Estat del projecte
- Construït











