Sanierung Einfamilienhaus Holbergstrasse Kloten
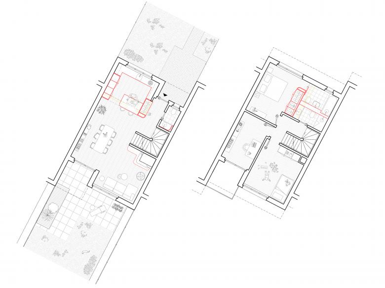
Eine junge Familie hat sich nach mehreren Jahren im Ausland mit dem Kauf eines Reihenhauses in Kloten sesshaft gemacht. Der Bau aus den 1980er Jahren zeigte sich technisch gut erhalten, bedurfte jedoch einer sanften Sanierung im Innenraum.
Nebst dem Ersatz sämtlicher Beläge, Oberflächen und einer Erneuerung der Bäder mit hochwertigen Sanitäranlagen und Armaturen lag der Fokus auf der Schaffung eines grosszügigen Wohnraumes im Erdgeschoss. Eine offene Küche mit Kochinsel verbindet die Bereiche nahtlos und ermöglicht eine einladende Atmosphäre, in der das Kochen zum sozialen Erlebnis wird.
Das Farbkonzept mit hellen Grautönen und Eichenparkett findet im gesamten Haus Anwendung und schafft eine ruhige und elegante Atmosphäre als Hintergrund für das bunte Leben einer jungen Familie. Die Betonabdeckungen in der Küche und beim Kamin setzen dabei einen markanten, jedoch auch harmonischen Akzent.
- Any
- 2023
- Estat del projecte
- Construït







