Bavaria Business Center

Radlkoferstraße 2, München, Germany
Fotografia © Stefan Müller

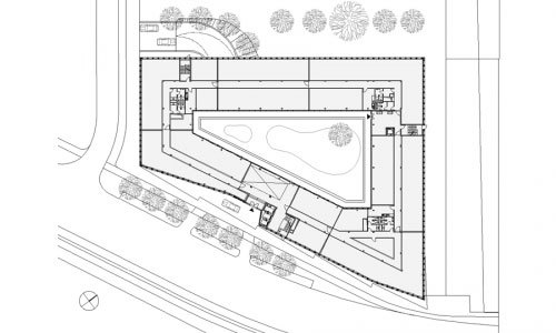
Die mehrfach gebrochene steinerne Kontur folgt der Krümmung der Radlkofer Straße. Das Herz des Gebäudes bildet der Innenhof. Ein Hof mit sattem Moosteppich, der von holzgerahmten Fassaden umschlossen ist. Die Tradition hölzerner Veranden und Wintergärten wird fortgesetzt, um ähnliche Intimität und Dichte zu erreichen.

Fotografia © Stefan Müller
Fotografia © Markus Müller
Dibuix © Ortner & Ortner Baukunst
Dibuix © Ortner & Ortner Baukunst
Dibuix © Ortner & Ortner Baukunst
Any
2003
Estat del projecte
Construït

Altres projectes per O&O Baukunst 

Alexander Tower
Berlin, Germany
Sparkasse KölnBonn
Bonn, Germany
KPM Hotel- und Bürogebäude
Berlin, Germany
Kunstkonsulat
Düsseldorf, Germany
25hours Hotel "The Circle"
Köln, Germany