Starcom
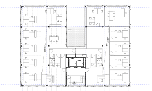
Auf dem Gelände des neu geplanten Schwedler Carrés in Frankfurt am Main entstand mit dem Bau der Starcom ein hochwertiges Büro- und Geschäftshaus. Das Quartier auf dem ehemaligen Großmarkt-Gelände im Osthafen wurde bereits 2007 an das städtische U-Bahn-Netz angeschlossen, ein erster Schritt Richtung modernem Wohn- und Dienstleistungsviertel.
Das Gebäude fügt sich in ein städtebauliches Ensemble aus einer Reihe neuer individuell geplanter Bauwerke ein. Der Baukörper folgt im Süden und Osten dem Verlauf der Straße, schließt im Westen den Quartiersplatz ab. An der nördlichen Gebäudeseite gliedert ein zwei-stufiger vertikaler Einschnitt die Fassade. Im oberen Gebäudeabschluss werden an zwei Seiten durch Terrassen großzügige Freibereiche geschaffen, welche sich, durch Luftbalken begrenzt, dem kubischen Gesamtbild unterordnen. Die klare Gestalt des Baukörpers wird durch seine Strukturfassade unterstrichen, die Ausführung mit einem klassischen Ziegel erinnert an das ehemalige, traditionelle Hafenviertel. Drei eigens entwickelte Rottöne - mit rotem Fugenmörtel verarbeitet - verleihen dem strengen, monolithischem Baukörper Strahlkraft.
- Any
- 2010
- Estat del projecte
- Construït








