Neubau Kindergarten

Der neue Kindergarten ist gemäss der übergeordneten Schulraumplanung auf dem bestehenden Hartplatz zwischen der Haargasse und der Turnhalle Zimmerberg erstellt worden. Die Situierung und das Projekt sind so vorgesehen, dass zu einem späteren Zeitpunkt ein zweiter Kindergarten dazugebaut werden könnte.

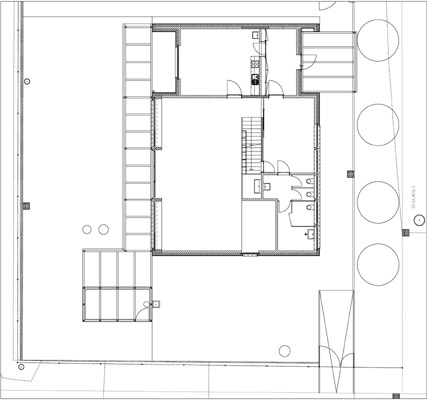
Das Raumangebot ist auf zwei Geschosse verteilt. Im Erdgeschoss liegt der Hauptraum des Kindergartens welcher über einen Windfang und die Garderobenanlage erreicht wird. Der Garderobe zugeordnet ist ein Sanitärbereich mit WC-Anlagen, Putz- und Installationsraum. Zum Hauptraum gehören eine Spielnische und ein Gruppenraum, welcher auch direkt vom Windfang aus zugänglich ist und auch von einem zweiten Kindergarten genutzt werden kann.

Das Obergeschoss ist als offene Galerie vom Hauptraum aus erreichbar. Hier sind Material- und Vorbereitungsbereich sowie ein Nebenraum platziert.

Dem Hauptraum auf der Westseite vorgelagert bildet eine grosszügige Veranda den Übergang zu den Aussenbereichen mit Spielwiese, Trockenplatz, Garten etc. Ein Grätehaus rundet das Angebot im Äusseren ab.

Der Innere und Äussere Aufbau der Anlage ermöglicht viel Freiraum für den Betrieb und  bietet Platz  für kreative Nutzung der diversen Bereiche.

Any
2005

Altres projectes per Oechsli + Partner 

Neubau Alterswohnungen
Schleitheim, Switzerland
Umbau Vordergasse 6/8
Schaffhausen, Switzerland
Umbau Einfamilienhaus
Stetten, Switzerland
Neubau privates Wohnhaus
Nussbaumen, Switzerland
Neubau zwei Einfamilienhäuser
Stein am Rhein, Switzerland