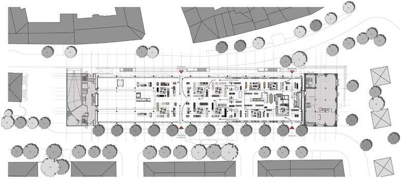
Schrannenhalle
Für den Umbau der Schrannenhalle spielt das übergeordnete Gestaltungskonzept für das Gesamtensemble eine große Rolle. Die Markthalle wird als Ergänzung zum Viktualienmarkt gesehen und durch die eigenständige Architektur- und Materialsprache die hochwertigen Produkte und Markttradition in den Vordergrund stellen. Unter einem Dach werden das Käfer Marktrestaurant, Deli-Shopping mit Verkostung und Produktion sowie weitere Marktstände und Restauration / Einzelhandel vereint.
Entwickelt wurde ein Marktstand, der frei kombiniert und zusammengefügt werden kann. Die Kernzone wird umgeben von einzelnen Modulen, die eine Nutzung von der Warenpräsentation bis zur Kühlvitrine zulassen. Mit einem einzigartigen Konzept aus einer Mischung von Einzelhandel und Gastronomie betritt die neue Schrannenhalle in München neues Terrain. Dem Kunden wird durch die Möglichkeit die verschiedenen Marktstände zu umlaufen, ein außergewöhnliches Produkterlebnis geboten.
Käfer Restaurant und Delikatessenmarkt: Der Käfer-Bereich in der Schrannenhalle ist eine gekonnte Mischung aus Delikatessenmarkt und Degustationseinheiten mit unterschiedlichen Sitzgelegenheiten. Hier können edle Produkte im Vorbeischlendern entdeckt werden.
Material und Gestaltung für den Bereich Käfer entwickeln sich aus der Optik der Markstände weiter und werden durch eigenständige neue Materialien wie z. B. Weide und Zementfliesen ergänzt.
- Any
- 2011
- Estat del projecte
- Construït
- Aufgabe
- Innenraumkonzept für die Markthalle und Design von 13 Marktständen, Einzelhandel und Gastronomie Delikatessenmarkt und Marktrestaurant







