Pfarrkirche Bruckneudorf
Geladener Ideenwettbewerb, 2. Platz
“Neubau katholische Pfarrkirche Bruckneudorf”
„Kirche“ als Mittlerin
Traditionell sind Kirchen als besondere Orte im Zusammenhang mit dem Dasein des Menschen auf Erden angelegt. Seien es signifikante topografische Situationen oder städtebauliche Bedingungen, immer sind sie als Mittlerinnen gesetzt, als Verbindung zwischen „dem Oben und dem Unten“ oder als Dreh- und Angelpunkte ihrer Umgebung.
Kirchen werden so zu einem Instrument der Vermittlung, sowohl in ihrer Außenwirkung und als Element im städtischen Gefüge, als auch in ihren inneren Eigenschaften.
Diese Aspekte vor Augen, ist das Konzept für die Kirche Bruckneudorf entwickelt worden.
Zunächst sind es die örtlichen Gegebenheiten, auf die der Kirchenneubau reagiert. Da sind die großen öffentlichen Räume des Areals: der zentrale Vorplatz für Schule und Veranstaltung, die Zufahrt mit dem Parkplatz und der parkmäßige Zwischenraum zwischen den Siloobjekten und den anderen Volumina für die Wohnbauten. Allein, um diese Räume miteinander zu verbinden, zeigt sich im Skizzieren eines Netzwerks schon, dass alle Wege irgendwie über den für den Kirchenneubau vorgesehenen Bauplatz führen. So ist es selbstredend, dass der Kirchenplatz dieses Potential des Verbindens aufnehmen und leisten muss.
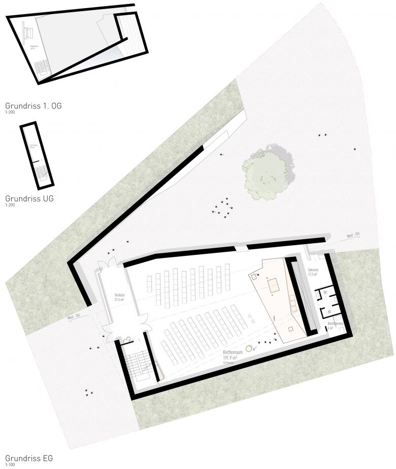
Nutzfläche: 346,2 m²
BGF:445,4 m²
- Estat del projecte
- Disseny
- Client
- Diözese Eisenstadt | OSG – Oberwarter Siedlungsgenossenschaft | Großgemeinde Bruckneudorf - Kaisersteinbruch
- Equip
- Bartosz Lewandowski (Teamleiter Entwurf), Anna Chakhal-Salakhova












