VIA Raststätte
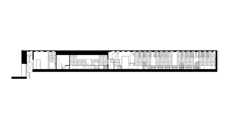
Raststätte is a restaurant project, initiated and operated by the VIA Werkstätten group in the southern Berlin bourough of Tempelhof. The restaurant consists of a large open seating area, café and kitchen with support spaces for handling staff training and catering. Elements of the existing space such as the brick vaulting and its historical identity (the birthplace of the vacuum-tube post) inspire layout and material use throughout.
- Any
- 2014
- Estat del projecte
- Construït






